Installation Instructions

Coopra Advanced Heating Technologies Installatie handleiding N15B; N15C; N37K; N37B; N37C
8
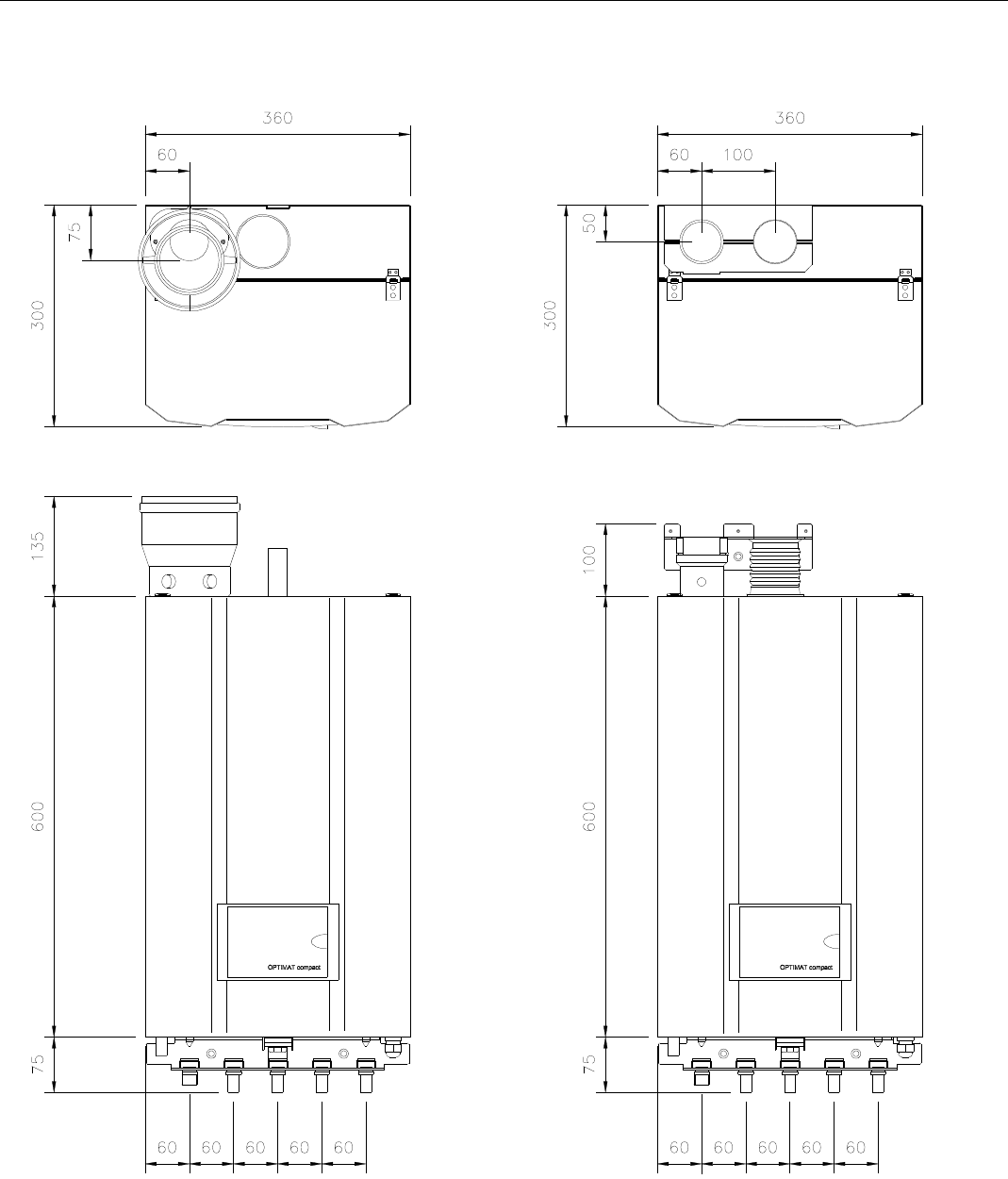
1.5. Maatschets
Maten in mm
Vrije ruimte
Er dient aan de onder- en bovenzijde voldoende vrije ruimte te zijn om het toestel op te kunnen hangen en alle toevoer-
en afvoerleidingen aan te kunnen sluiten. Normaliter is er een vrije ruimte van ca. 300 mm nodig.
Het is aan te bevelen om aan de linkerzijkant een ruimte van minimaal 150 mm en aan de rechterzijkant 50 mm vrij te
houden om daarmee een toegankelijkheid tot bouwelementen van het toestel te hebben.
De voorkant van het toestel moet voor servicedoeleinden te allen tijde goed bereikbaar zijn.
Korte afstand van het toestel en rookgasafvoer kanaal met brandbare materialen is niet toegestaan.










