Installation Instructions

Coopra Advanced Heating Technologies Installatie handleiding N15B; N15C; N37K; N37B; N37C
15
HOOFDSTUK 2. INSTALLATIE
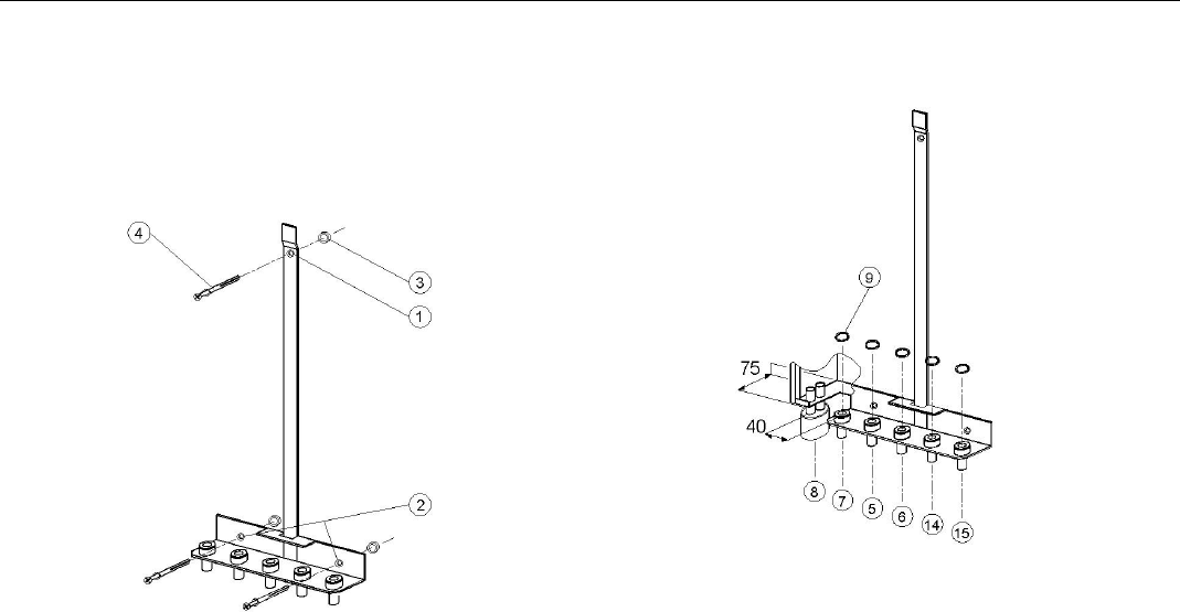
2.1 Montage van het muurkruis
Voor het monteren van het montagekruis op een
steenachtige muur van voldoende dikte worden de
meegeleverde nagelpluggen (4) gebruikt. De drie rubber
ringen (3) kunnen gebruikt worden voor afstandhouder
en/of geluiddemping.
- Teken de plaats van het gat (1) in de beugel van het
montagekruis af.
- Boor met een betonboor Ø 8 mm een gat met een
voldoende diepte in de muur.
- Houd het gat (1), in het montagekruis voor het gat in de
muur en breng een van de meegeleverde nagelpluggen
(4) door het montagekruis heen in het gat aan.
- Richt het montagekruis met behulp van een waterpas
uit.
- Boor met een betonboor Ø 8 mm door de twee
onderste gaten (2) in het montagekruis gaten met een
voldoende diepte in de muur.
- Breng twee van de meegeleverde nagelpluggen (4) in
de onderste gaten (2) aan.
- Zet het montagekruis stevig vast door alle schroeven
(4) aan te draaien.
2.2. Water en gas aansluitingen
8 = rioolaansluiting
7 = gas aansluiting
5 = CV retourleiding
6 = CV aanvoerleiding
14 = warm tapwater
15 = koud tapwater
9 = 0-ringen
2.2.1. Gas aansluiting
- Sluit de gasleiding aan op aansluiting (7).
- Leg de gasleiding spanningsvrij aan.
- Neem een goedgekeurde afsluitkraan in de leiding op.
- Blaas de gasleiding zorgvuldig schoon.
2.2.2. CV wateraansluitingen
- Verbind CV retourleiding met aansluiting (5).
- Verbind CV aanvoerleiding met aansluiting (6).
- Leg in het CV systeem een vul- en aftapmogelijkheid
aan.
- In de CV retourleiding (5) en CV aanvoerleiding (6)
dienen afsluitkranen te worden aangebracht.
- De CV retourleiding (5) moet van een toereikend
expansievat zijn voorzien.
- Monteer, als er geen waterstroming door de
warmtewisselaar verwacht kan worden, bv. bij installaties
met geheel afsluitende thermostaat kranen of zone
regelingen, tussen de aanvoer en de retour een
verschildruk regelaar (bypass klep).
- Monteer, indien verwacht kan worden dat het CV water
sterk zal vervuilen, bijvoorbeeld bij vloerverwarming, in
de retourleiding een 2 kg vuilvangfilter. Coopra kan voor
schade aan het toestel, ontstaan door vuil in het
systeem, geen garantie verlenen.
- Alvorens het toestel aan te sluiten, spoel het systeem
volledig schoon om verontreinigingen te verwijderen.










