User Manual

NOTICE!
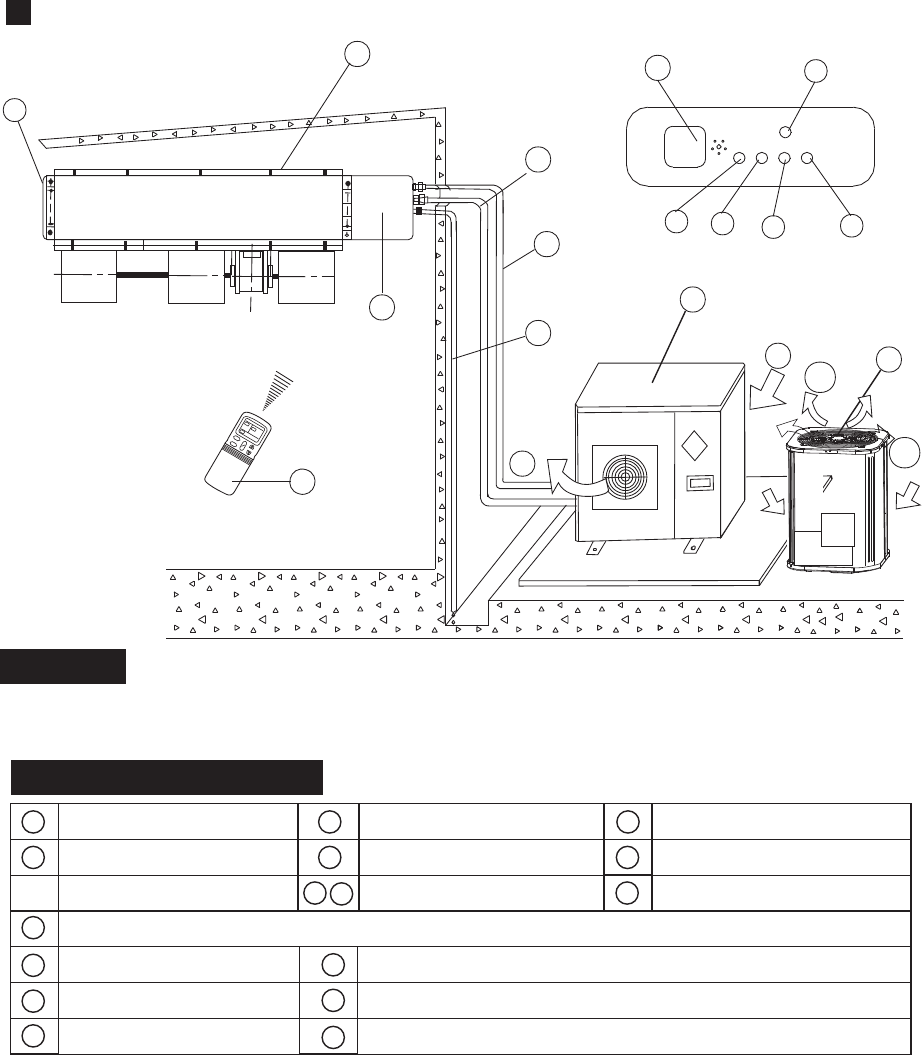
This chart is based on 24000Btu/h. type. So, a few differences may exist on the outlook and functions from yours.
For Slim Duct Type
f
b
d
e
i
m
n
l
p
o
c
温度
时钟
风速
风速
温度
自动
a
Display Panel
h
g
k
j
NAMES AND FUNCTIONS
b
c
f
a
d
e
g
h
i
j
k
m
o
p
l
n
indoor unit
air-out
outdoor unit
air-inlet
connecting pipe
E-Box
remote controller
air- outlet
drain hose
infrared signal receiver
operation lamp
timer indicator
temporary button
PRE./DEF. indicator
(cooling and heating type) or fan only indicator (cooling
alarm indicator
only type)
5
b
d
e
or