Owners Manual
Manuals
Brands
Continental Refrigerator Manuals
Commercial Equipment
34 Inch Cold Wall 13 cu. ft. Commercial Milk Cooler
11
12
13
14
15
16
17
18
19
20
19
OPERATIONS
MANUAL
MILK COOLERS
FORCED AIR & COLD WALL
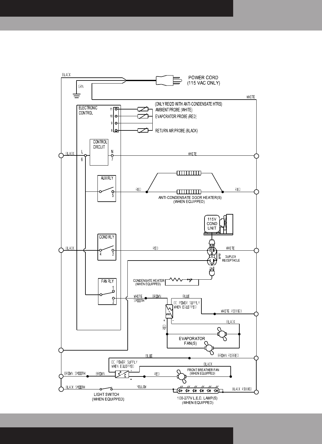
MILK COOLERS (FORCED AIR & COLD WALL MODELS) 115/60/1
W/ELECTRONIC CONTROL WD-R5-EC WIRING DIAGRAM
1
...
...
17
18
19
20