- Cleveland Classic Convection Steamer Specification Sheet

(NOT
T
O SCALE)
SECT
.
III P
AGE
26
0707
Litho in U.S.A
•
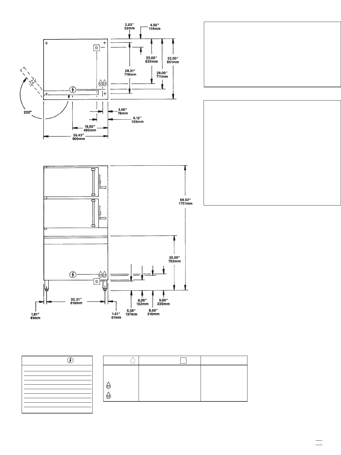
Each compartment has capacity for:
E
ight, 12˝ x 20˝ x 2
1
⁄2˝
deep Cafeteria Pans. Can
accomodate 18˝ x 26˝ Bun Pans.
•
M
any regional, state and local codes exist and it is the
responsibility of the owner and installer to comply with
those codes.
•
Cleveland Range equipment is built to comply with
applicable standards for manufacturers. Included
among those approval agencies are: UL, A.G.A.,
NSF, ASME/N.Bd., CSA, CGA, ETL, and others.
WATER QUALITY REQUIREMENT
T
he recommended minimum water quality standards
whether untreated or pre-treated, based upon 10 hours of
use per day, and a Daily Blowdown, are as follows:
TOTAL DISSOLVED SOLIDS less than 60 parts per million
TOTAL ALKALINITY less than 20 parts per million
SILICA less than 13 parts per million
pH FACTOR greater than 7.5
CHLORINE less than 30 parts per million
Consult a local water treatment specialist for an on site
water analysis for recommendations concerning steam
generator feed water treatment (if required), in order to
remove or reduce harmful concentrations of minerals. The
use of highly mineralized water will mean that more frequent
servicing of the steam generator will be necessary. The fact
that a water supply is potable is not proof that it will be
suitable for the generator.
NO
TES
:
Cleveland Range reserves right of design improvement or modification, as warranted.
Many regional, state and local codes exist and it is the responsibility of the owner and installer to comply with the codes.
Cleveland Range equipment is built to comply with applicable standards for manufacturers. Included among those approval agencies are ASME/N. Bd, UL/NSF#4 and CSA.
KW Volts Watts Ph Amps Wire
48 208 42,900 3 119.2 3
220 48,000 3 126.1 3
240 48,000 3 115.6 3
440 40,300 3 52.9 3
480
48,000
3
57.8
3
600
48,000
3
46.2 3
360 42,900 3 68.9 4
380
48,000
3
73.0
4
415
48,000
3
66.9
4
ELECTRIC
W
ATER
DRAINAGE
CLEARANCE
C
D
The Floor Drain must be located
outside the confines of the
equipment base.
1 1/2˝ I.P
.S. common drain.
Do not connect other units to this drain.
Do not use PVC pipe for drain.
Cold Water Inlet
35 psi minimum
60 psi maximum
1/4˝ NPT
Condenser feed
3/8˝ NPT Boiler
feed
Right - 3”, Left - 3”,
Rear - 3” (12” on control
side if adjoining wall or
equipment is over 30” high
for service access)
Contact factory for
v
ariances to c
learances.