User Guide
Table Of Contents
- Table of Contents
- Installation
- Operation
- Cleaning
- Service Parts
- 20.20 Gas Generator with Cleaning
- 20.20 Gas Injection with Cleaning
- Component Panel, Gas (OGB 20.20)
- Control Panel, with Picto (all models)
- Outer Base (OGB 20.20)
- Water Hose System, Condenser (all models)
- Water Valve (all models)
- Water Valve (OGB 20.20)
- Water Valve (OGS 20.20)
- Burner Insert, HL, Pre-mounted (all Gas models)
- Burner Insert, Air, LP & Natural Gas (all Gas models)
- Pump, Steam Generator, Gas, 110V (all Gas models)
- Door (20.20 models)
- Sliding Plate (all models)
- Exterior Sheeting (all models)
- Maintenance

FLAMECHECK
NEUTRAL
HI- LIMIT
RESET AIR HEAT/GO
PHASE ( L1 )
RESET AIR HEAT
GND
12 10 911 687
X1:
2154 3
HOT SURFACE
-N20
CONTROL MODULE
HOT AIR
213
X2:
GAS
VALVE
FLAME
SENSOR
1
-R20
-P1
2
0
24
-K0
46
2
1
X20
6
5
3
4
X25
9
10
9
GND. FIRING AUTOMAT
HOT AIR 1 FLAME OK
ALARM HOT AIR. 1
RESET HOT AIR 1
BURNER SUPPLY (L1)
7-9 NOT USED
IGNITOR
11
-N22
CONTROL MODULE
HOT AIR
7
X1:
HEAT REQUEST HL2
RESET HOT AIR 2
X22
5
3
4
1
2
10 9 812 11
213
X2:
FLAME
SENSOR
-P3
-R22
1
HOT SURFACE
IGNITOR
24
0
2
HOT AIR 2 FLAME OK
6-9 NOT USED
6
12
9
35
62154 3
GAS
VALVE
NL1
-K0
ALARM HOT AIR. 2
ALARM HOT AIR 2
RESET HOT AIR 2
HEAT REQUEST HL1
RESET HOT AIR 1 (HL1)
7
ALARM HOT AIR. 1
-A10:X11:8
2
1
3
X24
6
4
5
X26
6
5
3
4
1
2
7
X28
9
4
3
5
6
1
2
L1N
0
12
12VDC
5
GND
8
6
7
12V
TRANSMIT
RECIEVE
9
8
7
RECIEVE
TRANSMIT
12V
GND
-A10:X10 -U10X10.1
2
3
1
4
-U10:X10.2
4
1
3
2
X12X12X10
2
X2
-U20
4
3
9
7
8
12
11
10
8
7
6
1
2
3
4
5
-U22
2
4
3
X2
-BM2
BN
BK
RD
GND M2
MOTOR SPEED M2
12v(FOR SENSOR)
RPM
SENSOR
GM 5010
CONTROL BOARD
-A20
-T3
-T1
/9.C7
LOWER UPPER
SPEED
PWM
GROUND
PWM
GROUND
SPEED
F
E
D
C
B
A
12345678
F
E
D
C
B
A
12345678
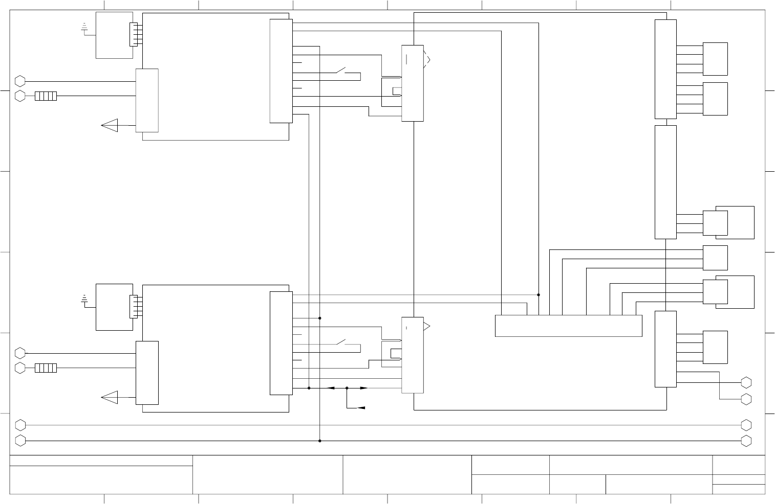
CLEVELAND RANGE, LLC
1333 East 179th St., Cleveland, Ohio 44110-2574
VOLTAGE:
WATTAGE:
CURRENT:
DATE
SHEET OF
REV
DRAWN BY
DRAWING NO.
THIS DESIGN DESCRIBES A PROPRIETARY ITEM AND IS THE PROPERTY OF CLEVELAND RANGE.
THIS DRAWING IS NOT TO BE COPIED OR USED WITHOUT THE APPROVAL OF CLEVELAND RANGE.
TITLE
SIZE
B
WIRING DIAGRAM
OGS 20.20
300498
110-120
-
22.5A
DRL
12-02-05
89
A
LADDER DIAGRAM
HI- LIMIT
FLAMECHECK
NEUTRAL
HI- LIMIT
RESET AIR HEAT/GO
PHASE ( L1 )
RESET AIR HEAT
GND
HI- LIMIT
8
72










