Operating Instructions and Installation Instructions

17
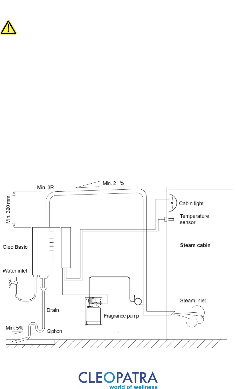
Installatie
Installatie in de technische ruimte
Gebruik alleen de originele onderdelen bij de montage.
De Cleo Basic stoomgeneratoren en alle aanvullende technische componenten moeten
in een geventileerde technische ruimte worden geïnstalleerd. De Cleo Basic
stoomgeneratoren zijn niet bedoeld voor de eindgebruiker. Installeer de Cleo Basic
stoomgenerator niet aan de binnenkant van een douchecel of in stoomcabines.
De Cleo Basic moet worden geïnstalleerd zoals beschreven in de NL 60335-2-105
norm. Installeer de Cleo Basic stoomgeneratoren en alle aanvullende technische
componenten niet direct op de muur van de cabine.
De Cleo Basic en alle aanvullende technische componenten moeten waar nodig
worden gezekerd en vastgezet door middel van schroeven. Gebruik geen onderdelen
van derden. De stoomgenerator is gemaakt voor gebruik in professionele installaties.
Installeer de Cleo Basic horizontaal op een muur. De muur moet een vlak oppervlak
hebben. Vermijd vervorming van de behuizing. De temperatuur van de wand waarop de
Cleo Basic bevestigd is mag niet tot condensatie aan de binnenkant van de generator
leiden. Gebruik de Cleo Basic niet in een explosieveilige omgeving of in een omgeving
waar ontvlambare lucht terug kan stromen in de cilinder. Tijdens gebrui k kan het water
uit de generator stromen. Plaats daarom geen watergevoelige apparatuur onder de
generator of zorg dat deze goed beschermd is tegen vocht. De max. druk op de uitlaat
van de cilinder mag niet boven de 100 mm komen.










