Operating Instructions and Installation Instructions

23
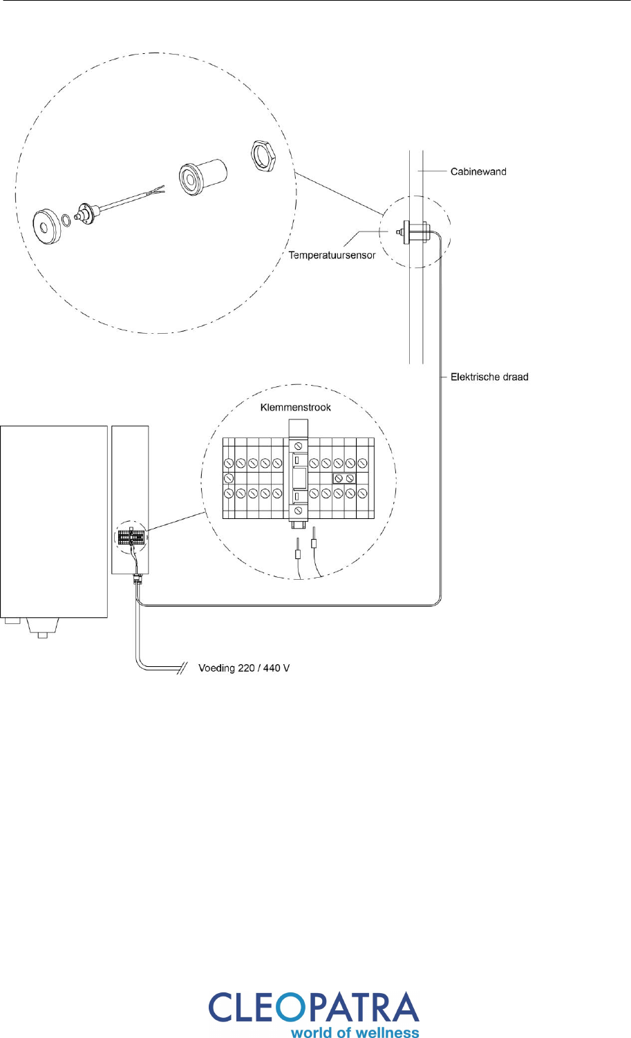
Installatie
Aansluiten van de temperatuursensor
De temperatuursensor moet worden aangesloten volgens het bijgevoegde
aansluitschema. Plaats de temperatuursensor in de stoomcabine zodat een
representatieve temperatuur gemeten kan worden. Zorg ervoor dat de
temperatuursensor schoon is. De standaard lengte van de aansluitkabel is 10 meter.
Een verlenging van de aansluitkabel moet worden vermeden: onzorgvuldige
aansluitpunten kunnen de temperatuurmeting verstoren en de goede werking van de
stoomgenerator belemmeren. De interne elektronica is al aangesloten. De externe
temperatuursensor bestaat uit tweepolige kabels van 0,75 mm2 bij 1 meter lengte.
Gebruik een stofdichte behuizing bij het aansluiten van de kabel op de
temperatuursensor. Let op! Een slechte aansluiting kan van invloed zijn op een juiste
meting van de temperatuur.
Leg de kabel tussen de stoomgenerator en de cabine in een leiding of een kabelgoot.
Temperatuursensor: alleen de originele sensor kan worden gebruikt als een
temperatuursensor. De temperatuursensor mag niet worden bedekt door andere
objecten of vuil. De temperatuursensor moet op een hoogte van 1,80 m boven de vloer
en op een afstand van 125 mm van het scharnier van de deur worden gemonteerd.
Installeer de sensor
op 1.80 hoogte










