Operator`s manual
Manuals
Brands
Clarke Manuals
Laundry Appliance
BOOST 28
47
48
49
50
51
52
53
54
55
56
Clarke
®
Operator's
Manual
-
BOOST
28
Page -53-
Clarke
®
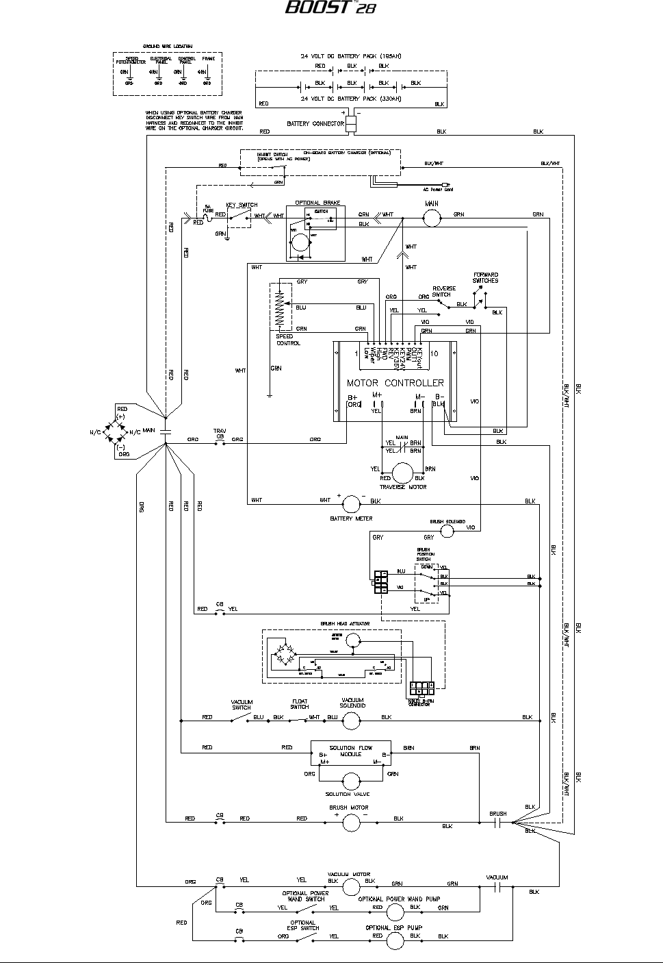
Electrical Schematic 9/05
1
...
...
51
52
53
54
55
...
56