Operator`s manual
Manuals
Brands
Clarke Manuals
Laundry Appliance
BOOST 28
47
48
49
50
51
52
53
54
55
56
Page -52-
Clarke
®
Operator's Manual - BOOST 28
Clarke
®
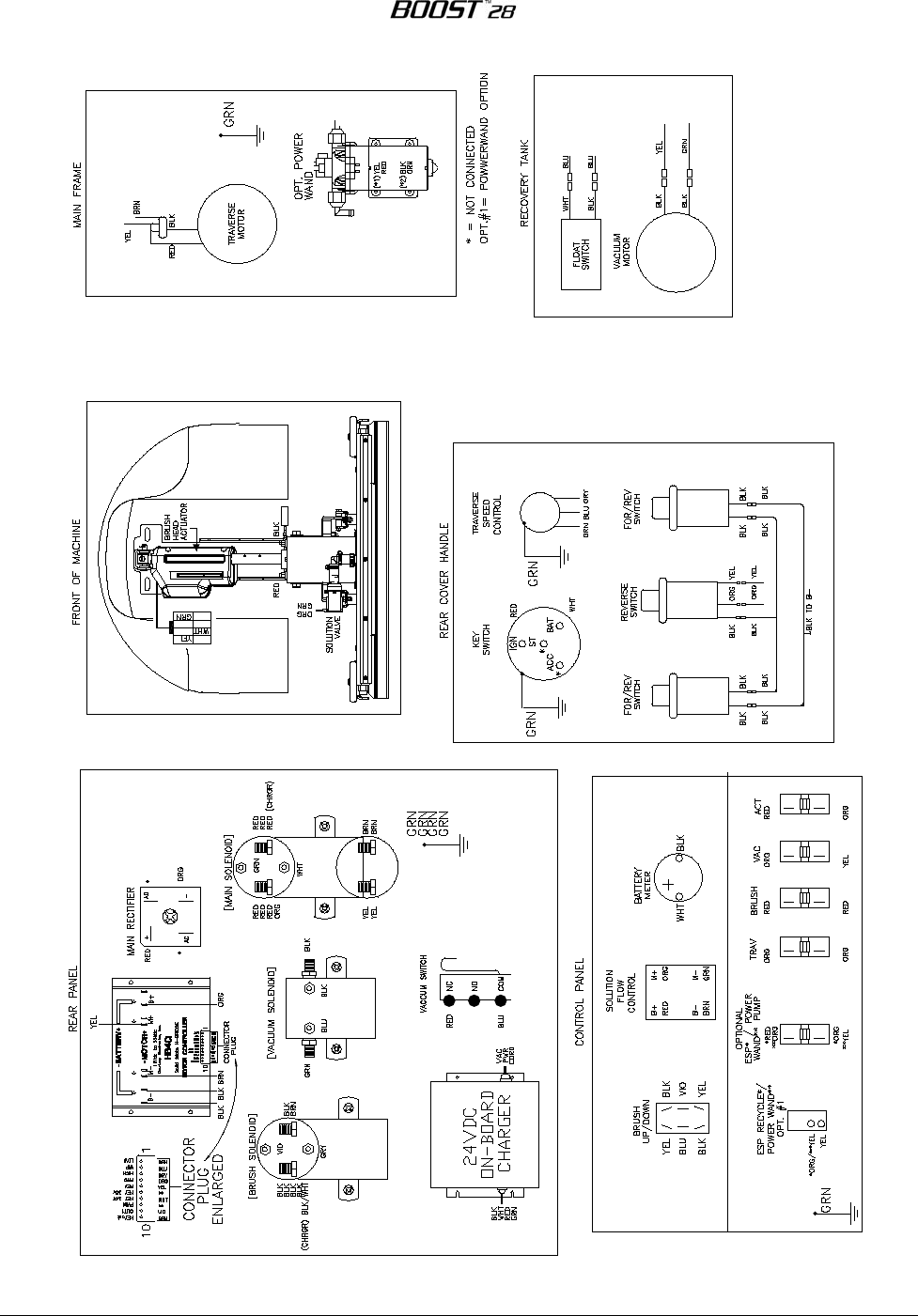
Connection Diagram 9/05
1
...
...
50
51
52
53
54
55
...
56