Mighty Mite and Super Laundry Presses Installation

© Copyright, Alliance Laundry Systems LLC – DO NOT COPY or TRANSMIT
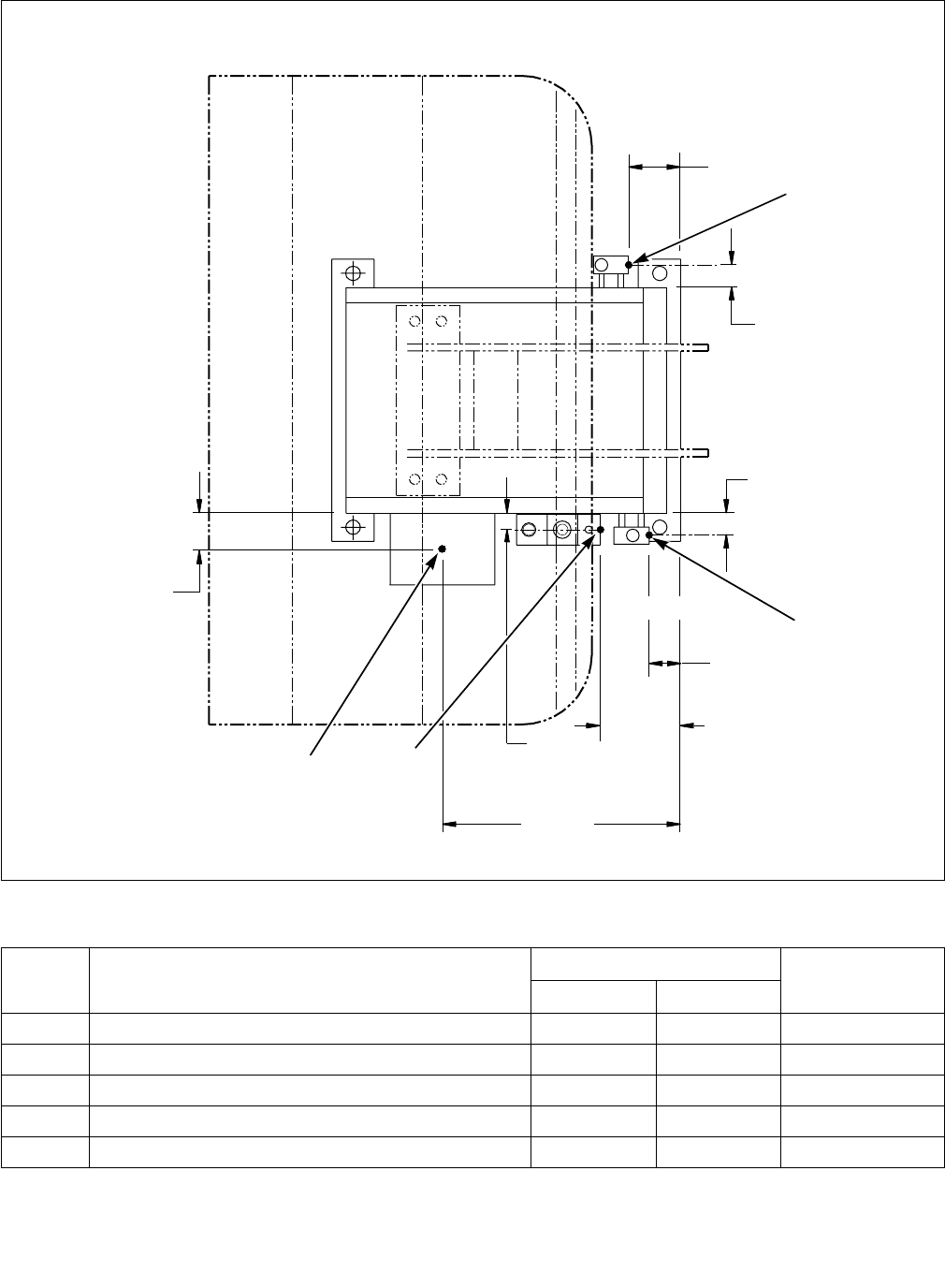
Installation
AJ1031
14
Figure 6
SCR98N
B0167B
1-1/2 in.
(3.8 cm)
2
1
3
4, 5
3-3/4 in.
(9.5 cm)
4-3/4 in.
(12 cm)
1-1/2 in.
(3.8 cm)
5-1/2 in.
(14 cm)
1-1/8 in.
(2.9 cm)
18-1/4 in.
(46.4 cm)
1-1/2 in.
(3.8 cm)
Item Description
Above Flat Floor
Connection
inches cm
1 Electrical Connection (for presses with timer ONLY) 12 30.5 Refer to Tab l e 2
2 Air Inlet 11 28 1/4 NPT-F
3 Steam Inlet 21.63 55.0 1/2 NPT-F
4 Buck Steam Outlet 21.25 54.0 1/2 NPT-F
5 Head Steam Outlet 23.25 59.0 1/2 NPT-F
Tabl e 3










