Mighty Mite and Super Laundry Presses Installation

© Copyright, Alliance Laundry Systems LLC – DO NOT COPY or TRANSMIT
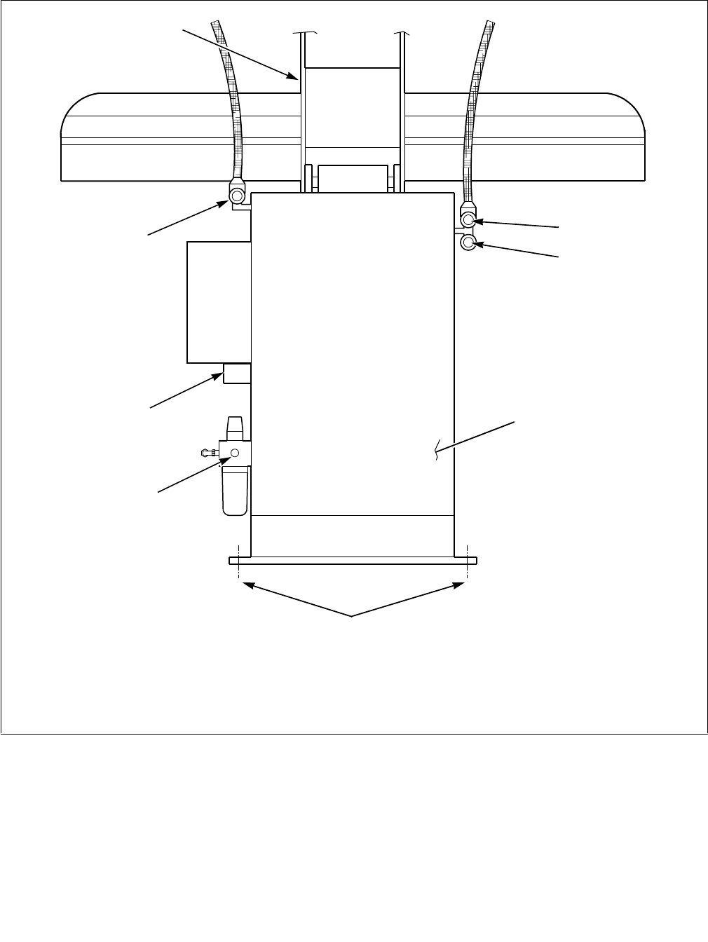
Installation
11
AJ1031
Rear View – Typical Laundry Press
Figure 4
SCR96N
1 Head Steam Outlet 5 Air Inlet
2 Buck Steam Outlet 6 Electrical Hook-Up (With optional timer)
3 Rear Cover 7 Steam Inlet
4 Anchor Bolt Holes 8 Pressure Arm
B0158
1
2
3
4
5
7
8
6










