Mighty Mite and Super Laundry Presses Installation

© Copyright, Alliance Laundry Systems LLC – DO NOT COPY or TRANSMIT
Installation
AJ1031
10
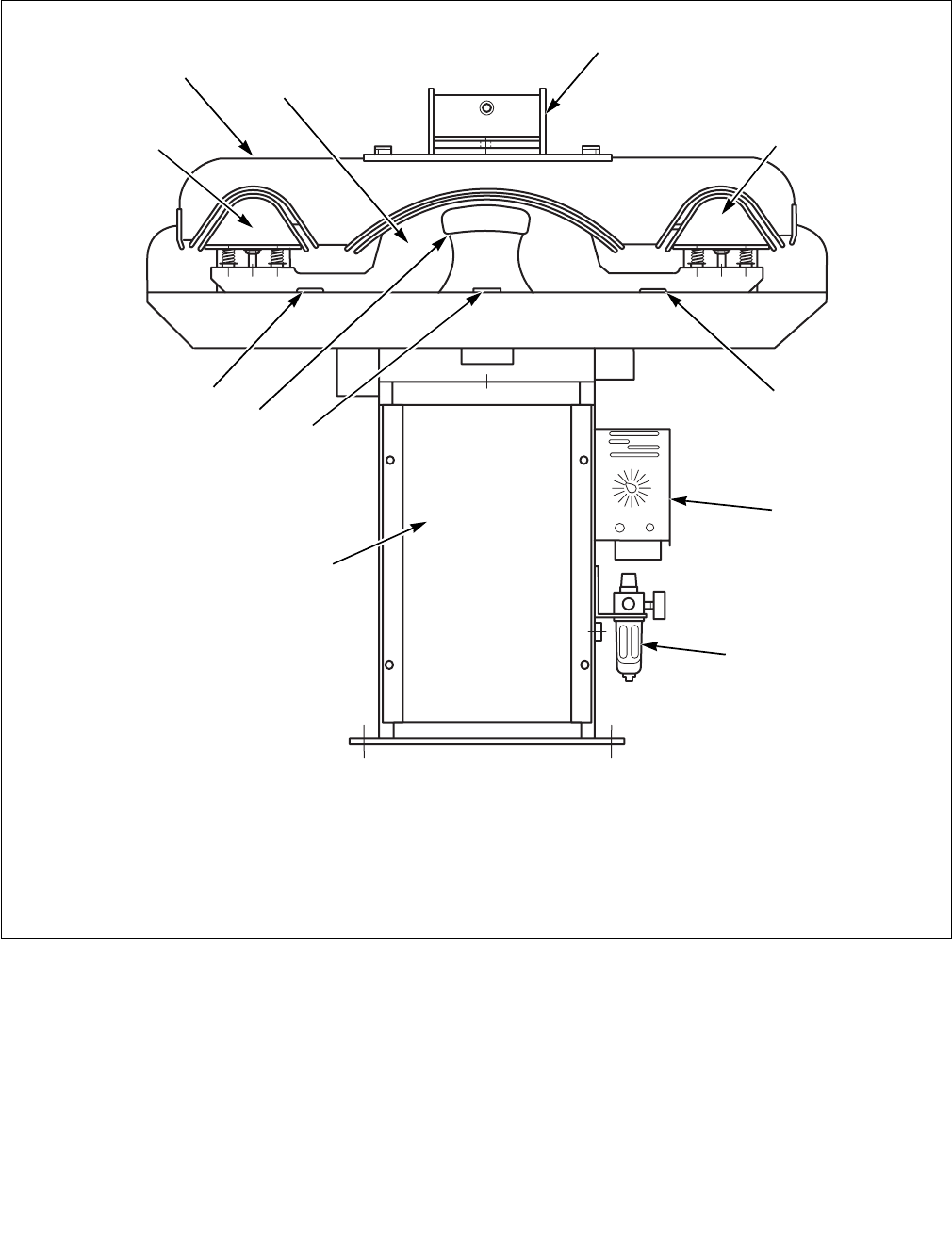
Front View – Typical Laundry Collar
and Cuff Press
Figure 3
SCR548N
1 Pressure Arm 6 Cover
2 Cuff Buck 7 Open Pushbutton
3 Close Pushbutton 8 Yo k e R e s t
4 Timer Control Box 9 Head
5 Air Filter/Regulator/Lubricator and Downstream
Relieving Air Shut-Off and Lockout Valve
10 Collar Buck
SCR548N
1
3
4
6
10
2
7
3
5
9
2
8










