User Guide
Table Of Contents
- Cisco7010 and Cisco 7505 ChassisReplacementInstructions
- Product Overview
- Prerequisites
- Replacing the Chassis
- Replacing a Rack-Mounted Chassis
- Removing the Existing Chassis from the Rack
- Step 1 Turn off the system power and disconnect the power cord and all interface cables from the ...
- Step 2 Have a second person support the chassis while you perform this step. From the front of th...
- Step 3 Pull the chassis out of the rack and place it on the floor or a table.
- Step 4 Use a number2 Phillips screwdriver to loosen and remove the two M4 x 10-mm, Phillips flat...
- Step 5 Pull the ears off the chassis, and place the ears and all fasteners aside.
- Installing the New Chassis in the Rack
- Step 1 Position the chassis so that the end that will be in the front of the rack is closest to y...
- Step 2 Attach the right chassis ear to the chassis first. Hold the ear in the orientation shown i...
- Step 3 Insert the two studs through the holes on the side of the chassis. The ear should be flush...
- Step 4 Insert two M4 x 10-mm, Phillips flathead screws through the ears and into the chassis side...
- Step 5 Repeat Steps2through4 for the left ear. The strip of mounting holes on the front of eac...
- Step 6 Lift the chassis and move it to the rack. Avoid sudden twists or moves to prevent injury.
- Step 7 Insert the rear of the chassis into the rack, pushing it back until the ears meet the fron...
- Step 8 From the front of the rack, insert all eight 10-32x3/8-inch, slotted screws (four on eac...
- Step 9 When all screws are inserted, use a 1/4-inch, flat-blade screwdriver to tighten each one.
- Removing the Existing Chassis from the Rack
- Installing the Cable Management Brackets
- Figure7 Cable Management Brackets—Cisco 7010 Shown
- Step 1 If you have new brackets to install on the new chassis, proceed to Step4. If you are remo...
- Step 2 At the interface processor end of the existing chassis, push the cables out of the cutouts...
- Step 3 Use a number1 Phillips screwdriver to remove the sixpanhead screws (threeper bracket) t...
- Step 4 At the interface processor end of the new chassis, place a bracket on one of the inner sid...
- Step 5 Insert and finger-tighten three M3 Phillips screws from the inner side of the chassis, thr...
- Step 6 When all three screws are inserted, use the number1 Phillips screwdriver to tighten the s...
- Step 7 Repeat Steps 4 through 6 for the second bracket.
- Step 8 When connecting the network interface cables or installing processor modules with the inte...
- Moving Processor Modules
- Figure8 Ejector Levers and Captive Installation Screws
- Step 1 Before moving any processor modules, ensure that you have met the following prerequisites ...
- Step 2 Note the slot location of the interface processor you will move. Before removing the inter...
- Step 3 If necessary, disconnect any interface cables that are connected to the processor module.
- Step 4 Use a screwdriver to loosen both of the captive installation screws. (See Figure8a.)
- Step 5 Place your thumbs on the end of each ejector and simultaneously pull them both outward, aw...
- Step 6 Grasp the carrier handle with one hand and pull the processor module straight out of the s...
- Step 7 Place the processor module in the same slot position in the new chassis and align the notc...
- Step 8 While keeping the carrier at a 90-degree orientation to the backplane, carefully slide the...
- Step 9 Using the thumb and forefinger of each hand to pinch each ejector, simultaneously push bot...
- Step 10 Use a screwdriver to tighten the two captive screws to prevent the processor module from ...
- Step 11 Repeat Steps2through10 for the remaining interface processors.
- Step 12 Repeat Steps3through10 for the SP (or SSP) and RP in the Cisco 7010, and the RSP1 in t...
- Checking the Installation
- Step 1 Ensure that the system power switch is in the off position, then reconnect the power cable...
- Step 2 Connect all interface cables to the appropriate interface processor ports. Ensure that all...
- Step 3 Ensure that you have either a console terminal connected to the system console port or a p...
- Step 4 Turn on the system power. The DC OK LED should go on and stay on. If if does, proceed to t...
- Step 5 While the system initializes, the yellow boot error LED on the RP should go on for about t...
- Step 6 When the system boot is complete, the RP or RSP1 begins to initialize the interface proces...
- Step 7 If the enabled LED on a single interface processor remains off, suspect that the interface...
- Step 8 If an enabled LED still fails to go on after performing these steps, suspect that the spec...
- Step 9 Verify that the console terminal displays a script and system banner similar to the follow...
- Step 10 After the system initializes, use the various show commands to display the status of the ...
- show Command Descriptions and Examples
- Replacing a Rack-Mounted Chassis
- Cisco Information Online

Cisco 7010 and Cisco 7505 Chassis Replacement Instructions 11
Replacing the Chassis
Step 5 Repeat Steps 2 through 4 for the left ear. The strip of mounting holes on the front of each
ear should be approximately flush with the end of the chassis. (See Figure 5.)
Figure 5 Installing the Ears on the Chassis
Step 6
Lift the chassis and move it to the rack. Avoid sudden twists or moves to prevent injury.
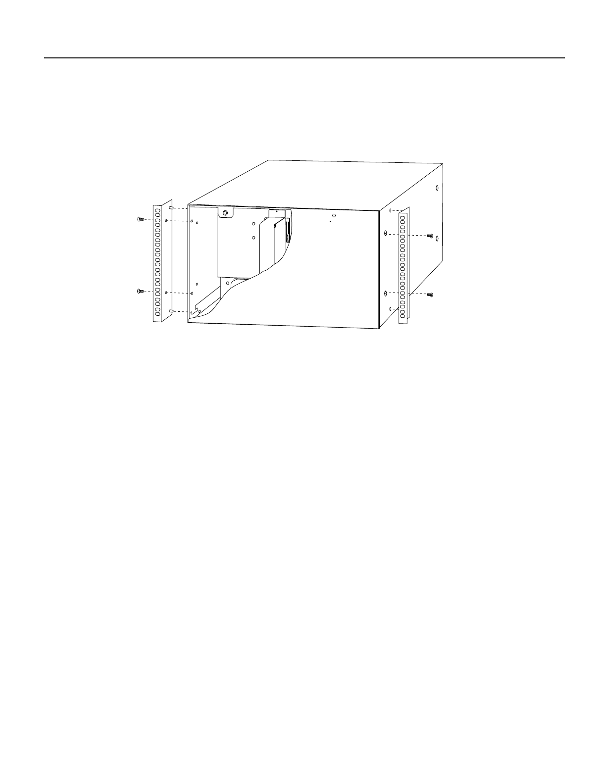
Step 7 Insert the rear of the chassis into the rack, pushing it back until the ears meet the front
mounting strips or posts on both sides of the equipment rack. Slide the chassis vertically
along the rails to align the mounting holes in the ears with those in the rack.
Step 8 From the front of the rack, insert all eight 10-32 x 3/8-inch, slotted screws (four on each
side) through the chassis ears and into the mounting strip. (See Figure 6.)
Step 9 When all screws are inserted, use a 1/4-inch, flat-blade screwdriver to tighten each one.
This completes the rack installation. Proceed to the next section to install the cable management
brackets.
H2917










