User's Manual
Table Of Contents

91
P/N 114958 - Condensate Removal Option Installation Instructions
Model DH5000 Condensate Removal Option Description
81
3
8
[1901]
"
60
1
8
[1526]
Machine
Height
Condensate
Removal
Mounted
"
25
[635]
"
~
~
Condensate
Removal
Shroud
A
Machine
Mounted
Condensate
Removal
Control Box
C
B
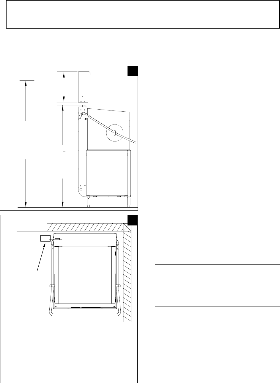
The condensate removal option is a stainless steel vent shroud (approx. weight 60 lbs./27 kg)
and a control box mounted on the left side of the dishwasher.
1. The condensate removal shroud
is mounted on the top rear of the
dishwasher using (4) 1/4-20 x 1/2" SST
truss head screws. (See Figure A).
2. The shroud must be installed before the
dishwasher is permanently placed and
before connecting the utilities.
3. The dishwasher should be positioned in
a manner whcih allows the dish tables
and the machine to align for the proper
loading and unloading of the dish racks.
(See Figure B).
4. Only a 3/4" NPT cold water supply
is required for the Condensate
Removal Option (See Figure B).
! ATTENTION !
The condensate removal shroud must be installed before the dishwasher is permanently placed
and before the utilities are connected.
! VERY IMPORTANT !
The incoming cold water supply pressure
must be a minimum
of 45 PSI flowing pressure measured
at the dishwasher inlet connection.










