User's Manual
Table Of Contents

105
Hatco Gas Booster Installation
NOTE:
The installation of your GAS BOOSTER must be performed by qualified service personnel.
Problems due to improper installation are not covered by the Warranty.
NOTE:
The installation of the GAS BOOSTER must comply with all local electrical, plumbing, health and
safety codes or in the absence of local codes, installed in accordance with the applicable
requirements of the Standard for Ventilation Control and Fire Protection of Commercial Cooking
Operations, NFPA 96.
NOTE:
Installation of the GAS BOOSTER must be in accordance with local codes,or in the absence of
local codes, with thelatest edition of the National Fuel Gas Code, ANSI Z223.1, the National
Electrical Code, ANSI/NFPA 70. Canadian installations should conform with CSAB149.1,
Natural Gas and Propane Installation Code, and CSA-C22.1 Electrical Code, and/or
local installation codes. {Les installations canadiennes doivent se conformer aux CODES
D’INSTALLATION CSA-B149.1, Natural Gas and Propane Installation Code, et CSA-C22.1
Electrical Code, et/ou aux codes locaux d’installation.}
NOTE:
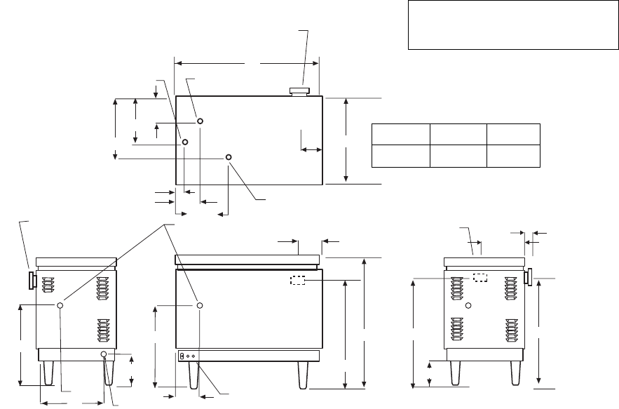
The illustration below shows the typical Hatco PMG-200 gas booster heater specifications.
Refer to the installation instructions shipped with your gas booster for details.
Hatco Corporation
1(800) 558-0607
Gas Booster Heater Overview
Straight out duct adaptor
shown. Replace with 90°
adaptor for other duct
configurations.
120-150°F (49-66°C)
Water Inlet
180°F (82°C) Water Outlet
6-1/16
2-1/4
19-5/8
6-1/16
Power switch
Power on lamp
Reset safety switch lamp
T/P relief valve may
be field installed at
side or rear
Unit may be adapted in
field with supplied parts
for side exhaust exit.
17
7-3/16
19-5/8
6-1/4
Ø7/8 hole for
1/2" conduit
Primary exhaust
exit location at rear
6-1/4
13
B
31-1/4
25-3/4
25-7/8
11-1/16
1-13/16
6-5/16
25-13/16
Gas Inlet
5-3/4
20-3/4
11-1/8
14-1/2
A
Model A DIM. B DIM.
PMG-200 35-15/16 5-11/16
NOTE: Dimensions listed are in inches.
NOTE: Overall Dimensions PMG 200: 36" W x 20-3/4" D x 31" H (914 x 527 x 787 x mm)










