User's Manual
Table Of Contents

104
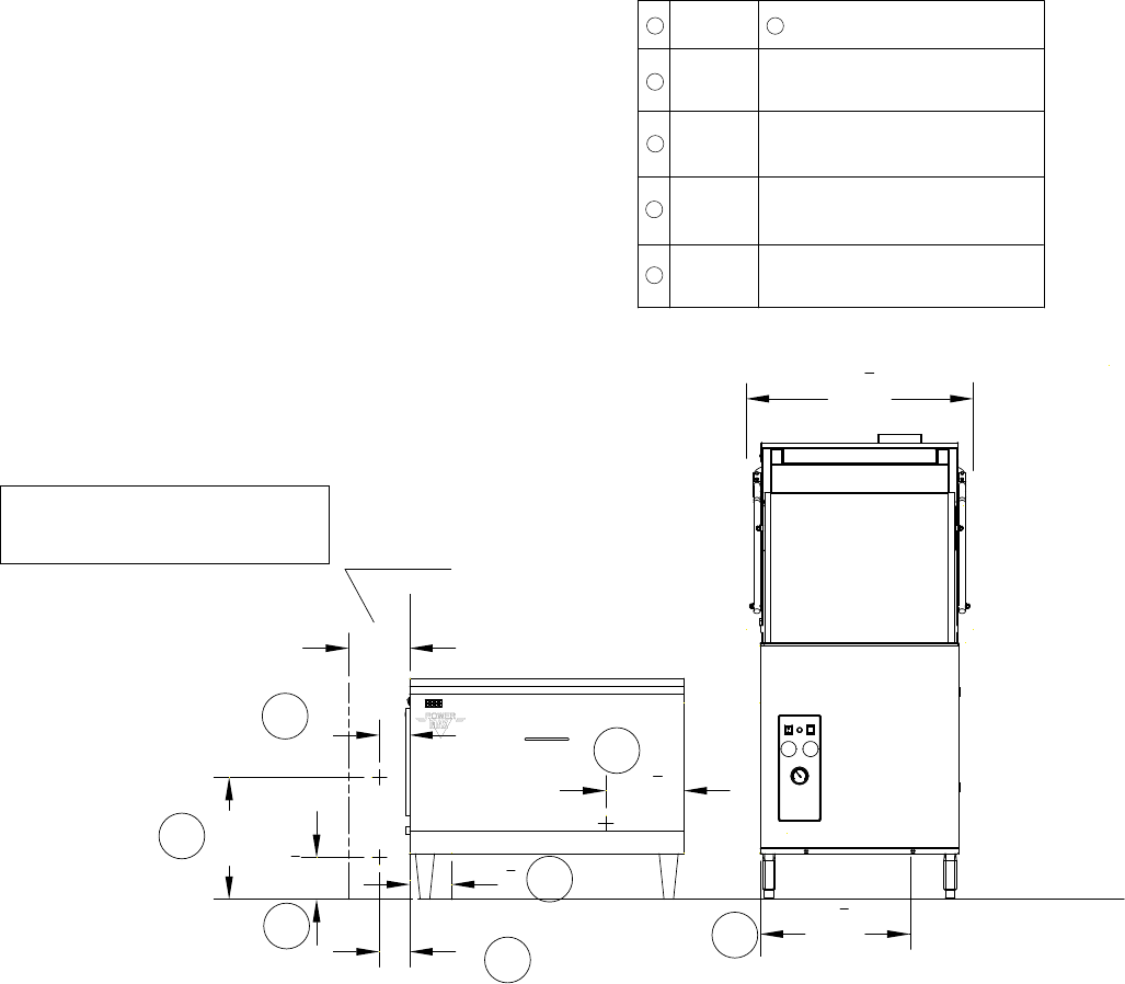
Gas Booster Heater Overview
UTILITIES (Vanguard Installation Only)
1
ELECTRICAL
2
HOT WATER
3
2" O. D. MACHINE DRAIN CONNECTION
DRAIN
3/4" NPT HOT WATER 140°F FOR 40°F RISE
INLET WATER TO BOOSTER - MIN. 40PSI, MAX 80PSI
15 GPM MAX FLOW
4
GAS
CONNECTION
NATURAL GAS 199,100 BtuH
3/4" NPT
NATURAL GAS PRESSURE 10.5" MAX AT INLET
B
BSTR CONNECTION 120V 1PH 6.2 AMPS
5
EXHAUST
CONNECTION
4" DIAMETER VENT DUCT WITH UNATTACHED
FLEXIBLE DUCTING. VENT PER LOCAL CODE
Vanguard Gas Booster Installation
NOTE:
The installation of your GAS BOOSTER must be performed by qualified service personnel.
Problems due to improper installation are not covered by the Warranty.
NOTE:
The installation of the GAS BOOSTER must comply with all local electrical, plumbing, health and
safety codes or in the absence of local codes, installed in accordance with the applicable
requirements of the Standard for Ventilation Control and Fire Protection of Commercial Cooking
Operations, NFPA 96.
NOTE:
Installation of the GAS BOOSTER must be in accordance
with local codes,or in the absence of local codes, with the
latest edition of the National Fuel Gas Code, ANSI Z223.1,
the National Electrical Code, ANSI/NFPA 70. Canadian
installations should conform with CSAB149.1, Natural Gas
and Propane Installation Code, and CSA-C22.1 Electrical
Code, and/or local installation codes.
{Les installations canadiennes doivent se conformer aux
CODES D’INSTALLATION CSA-B149.1, Natural Gas and
Propane Installation Code, et CSA-C22.1 Electrical Code,
et/ou aux codes locaux d’installation.}
NOTE:
The illustration below shows a typical straight-through
dishwasher installation with gas booster heater. Your
installation may be different. Refer to the installation
instructions shipped with your gas booster for details.
Typical Straight-through Dishwasher Installation
29
3
4
[757]
19
5
8
[500]
8
[203]
CLEARANCE PER
VANGUARD
16
[406]
4
[102]
5
1
2
[140]
4
[102]
5
1
2
[140]
10
1
4
[260]
3
2
4
4
1B
2
5
"
"
"
"
"
"
"
"
"
FLOOR
Vanguard Technology Inc.
1(800) 624-4809










