Installation Guide
Manuals
Brands
Cedarshed Manuals
Other
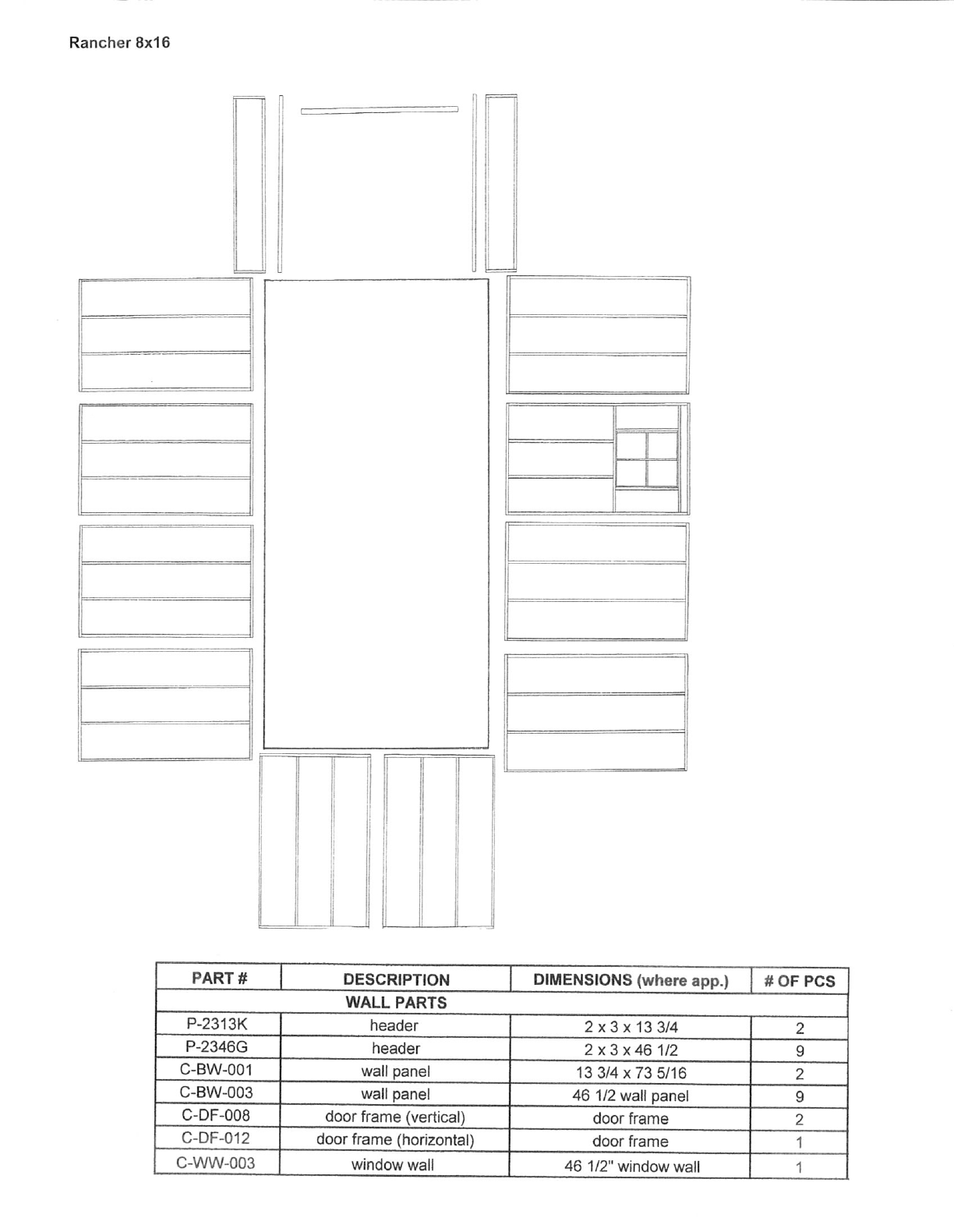
Rancher 8 ft. 9 in. x 16 ft. 10 in. Western Red Cedar Garden Shed
1
2
3
4
5
6
1
2
3
4
5
...
6