Technical data

9
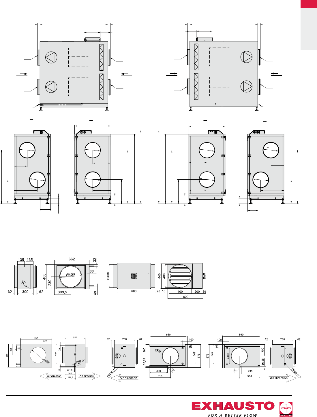
VEX340 Dimensioned sketches
Heating coil - water (HCW) and electric (HCE) - measured in mm
VEX340 Horizontal, Left VEX340 Horizontal, Right
Water heating coil (HCW) Electric heating coil (HCE)
1) Allow a distance for service in front
of the unit that is equivalent to the unit
depth
2) Allow a min. of 200 mm free height
for service
M
N
2,2
Supply air
1,2
Exhaust air
2,1
Outdoor air
1,1
Extract air
DN15(½")
202415
62176562
604
339
O
4
0
0
O
4
0
0
1,2
2,2
2,1
1,1
O
4
0
0
O
4
0
0
946
Left
472
472
200
626
1386
1803
1907
273
142
616
1386
1)
2)
M
N
RD12598GB-01
M
N
2,2
Supply air
1,2
Exhaust air
2,1
Outdoor air
1,1
Extract air
DN15(½")
202415
62176562
604
339
O
4
0
0
O
4
0
0
1,2
2,2
2,1
1,1
O
4
0
0
O
4
0
0
946
Left
472
472
200
626
1386
1803
1907
273
142
616
1386
1)
2)
M
N
RD12598GB-01
M
N
DN15(½")
1,1
Extract air
2,1
Outdoor air
1,2
Exhaust air
2,2
Supply air
176562 62
946
O
4
0
0
472
472
O
4
0
0
O
4
0
0
O
4
0
0
339
604
616
1386
1,1
2,1
1,2
2,2
415168
142
273
200
626
1386
1803
1907
Right
1)
2)
M
N
RD12387GB-01
M
N
DN15(½")
1,1
Extract air
2,1
Outdoor air
1,2
Exhaust air
2,2
Supply air
176562 62
946
O
4
0
0
472
472
O
4
0
0
O
4
0
0
O
4
0
0
339
604
616
1386
1,1
2,1
1,2
2,2
415168
142
273
200
626
1386
1803
1907
Right
1)
2)
M
N
RD12387GB-01
Cold water coil (CCW)
Non-insulated
Cold water coil (CCW)
Insulated, Left
Cold water coil (CCW)
Insulated, Right
VEX340










