Technical data
Manuals
Brands
CDA Manuals
Hob
HCE340 for
11
12
13
14
15
16
17
18
19
20
19
Simpli
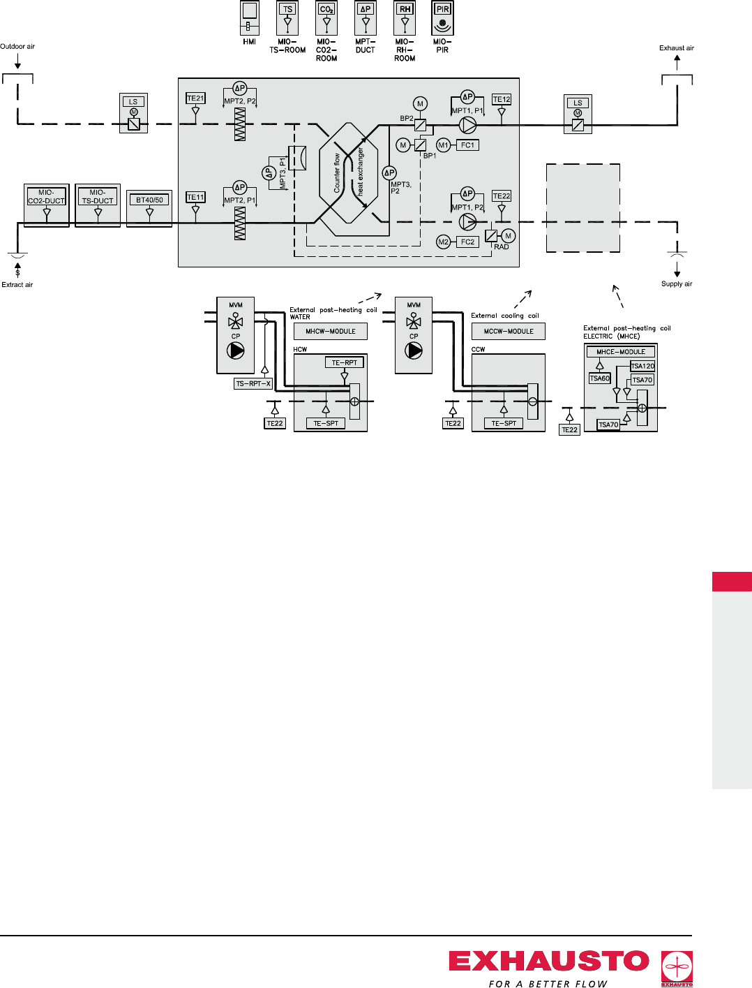
ed diagram
VEX340: General
1
...
...
17
18
19
20
21
...
...
24