Instructions / Assembly

Page 18
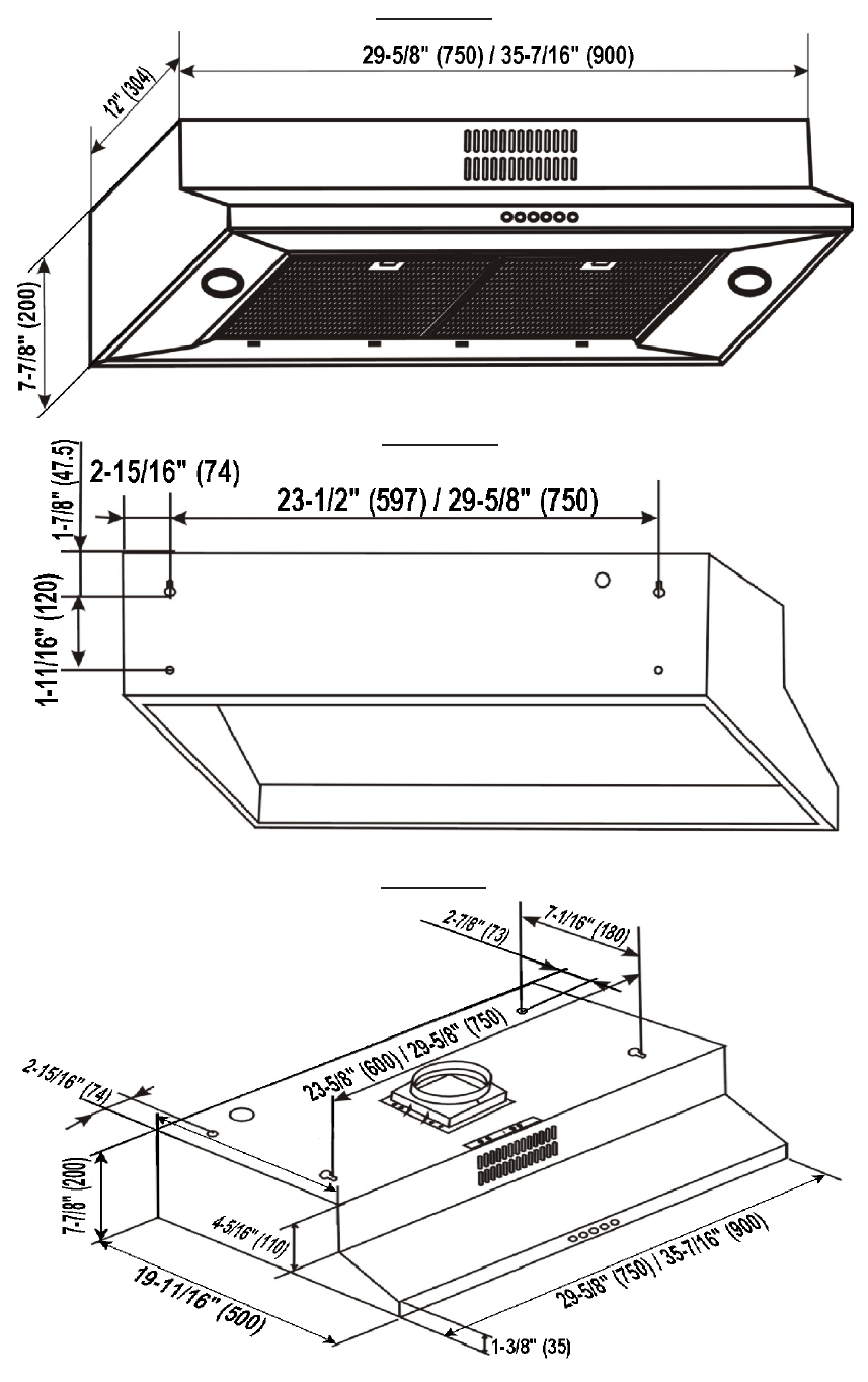
All measurements in parenthesis are in millimeter.
All inch measurements are converted from millimeters, thus inch measurements are estimated.
UC200-2000 Class:
Front View
Top View:
Rear View: