Owner Manual

Installation (Continued)
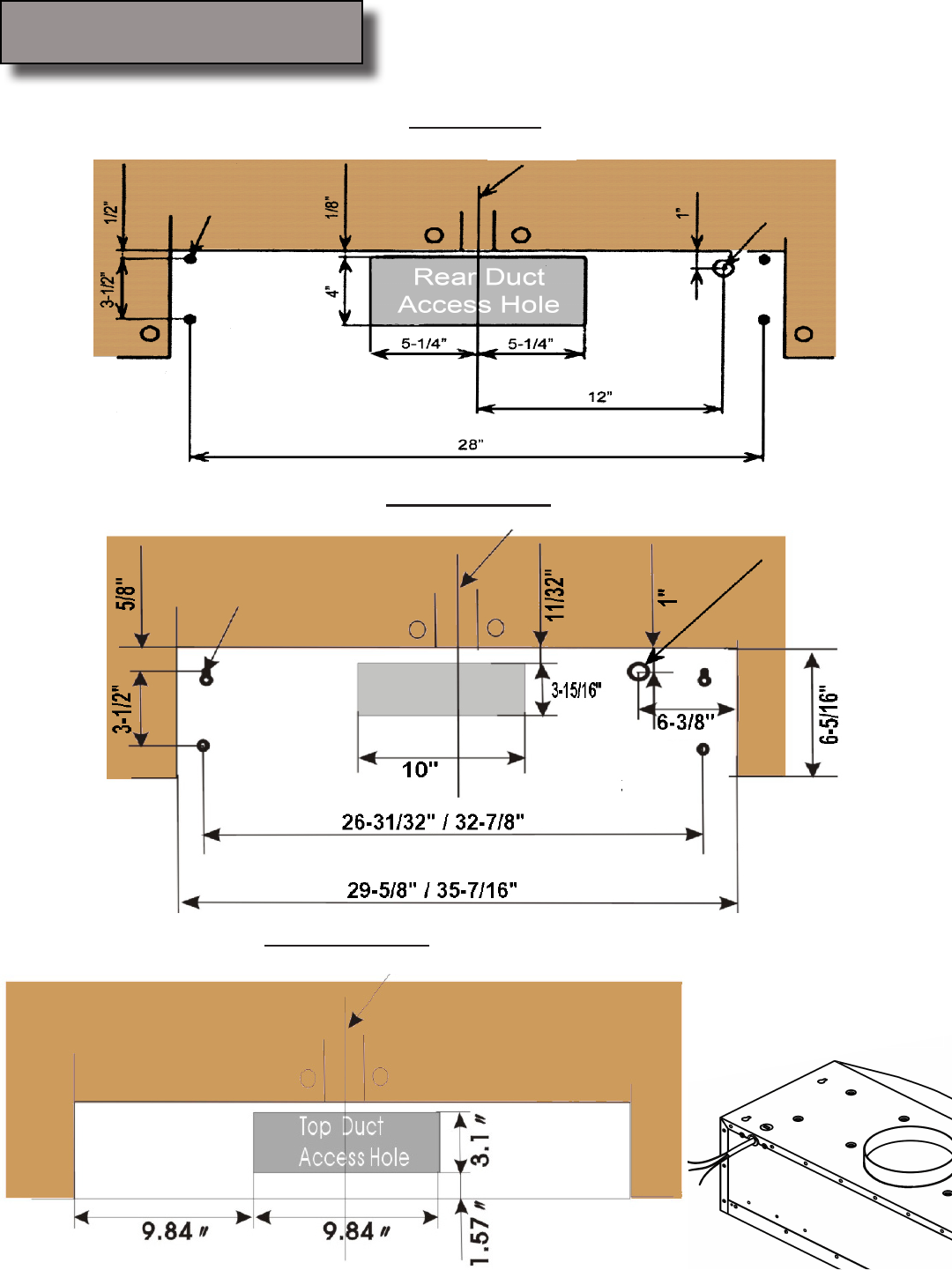
Centerline
Electrical
Wire
Opening
Centerline
Figure 5: Cabinet Front View
UC200-4130W
UC200-1900 Class
Page 12
Electrical
Wire
Opening
Figure 6:
Electrical wires
through rear opening
Centerline
UC200-1800 Class