Owner Manual
Table Of Contents
- EURO_UC200-4130-1
- EURO_UC200-4130.2
- EURO_UC200-4130.3
- EURO_UC200-4130.4
- EURO_UC200-4130.5
- EURO_UC200-4130.6
- EURO_UC200-4130.7
- EURO_UC200-4130.8
- EURO_UC200-4130.9
- EURO_UC200-4130.10
- EURO_UC200-4130.11
- EURO_UC200-4130.12
- EURO_UC200-4130.13
- EURO_UC200-4130.14
- EURO_UC200-4130.15
- EURO_UC200-4130.16
- EURO_UC200-4130.17
- EURO_UC200-4130.18
- EURO_UC200-4130.19
- EURO_UC200-4130.20
- EURO_UC200-4130.21
- EURO_UC200-4130.22
- EURO_UC200-4130.23
- EURO_UC200-4130.24
- EURO_UC200-4130.25
- EURO_UC200-4130.26
- EURO_UC200-4130.27
- Back

Page 11
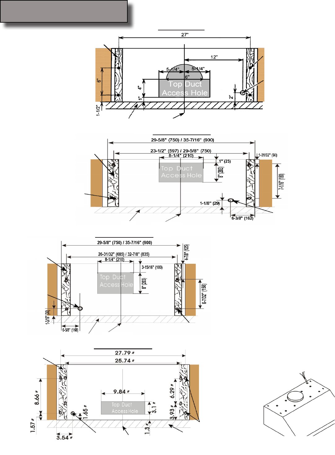
Installation (Continued)
Figure 3: Cabinet Bottom View
Wall
Centerline
Hood
Mounting
Screws
Electrical
Access
Opening
UC200-4130W
Wood Filler Strips
(Not included)
UC200-1900 Class
Centerline
Figure 4:
Electrical wires
through top opening
Wood Filler Strips
(Not included)
Hood
Mounting
Screws
Electrical
Access
Opening
UC200-2000 Class
Wood Filler Strips
(Not included)
Hood
Mounting
Screws
Electrical
Access
Opening
Centerline
Wall
Wall
UC200-1800 Class
Wood Filler Strips
(Not included)
Electrical
Access
Opening
Wall
Centerline
Hood
Mounting
Screws










