Owner's manual

Table Of Contents
T107 Weather Station
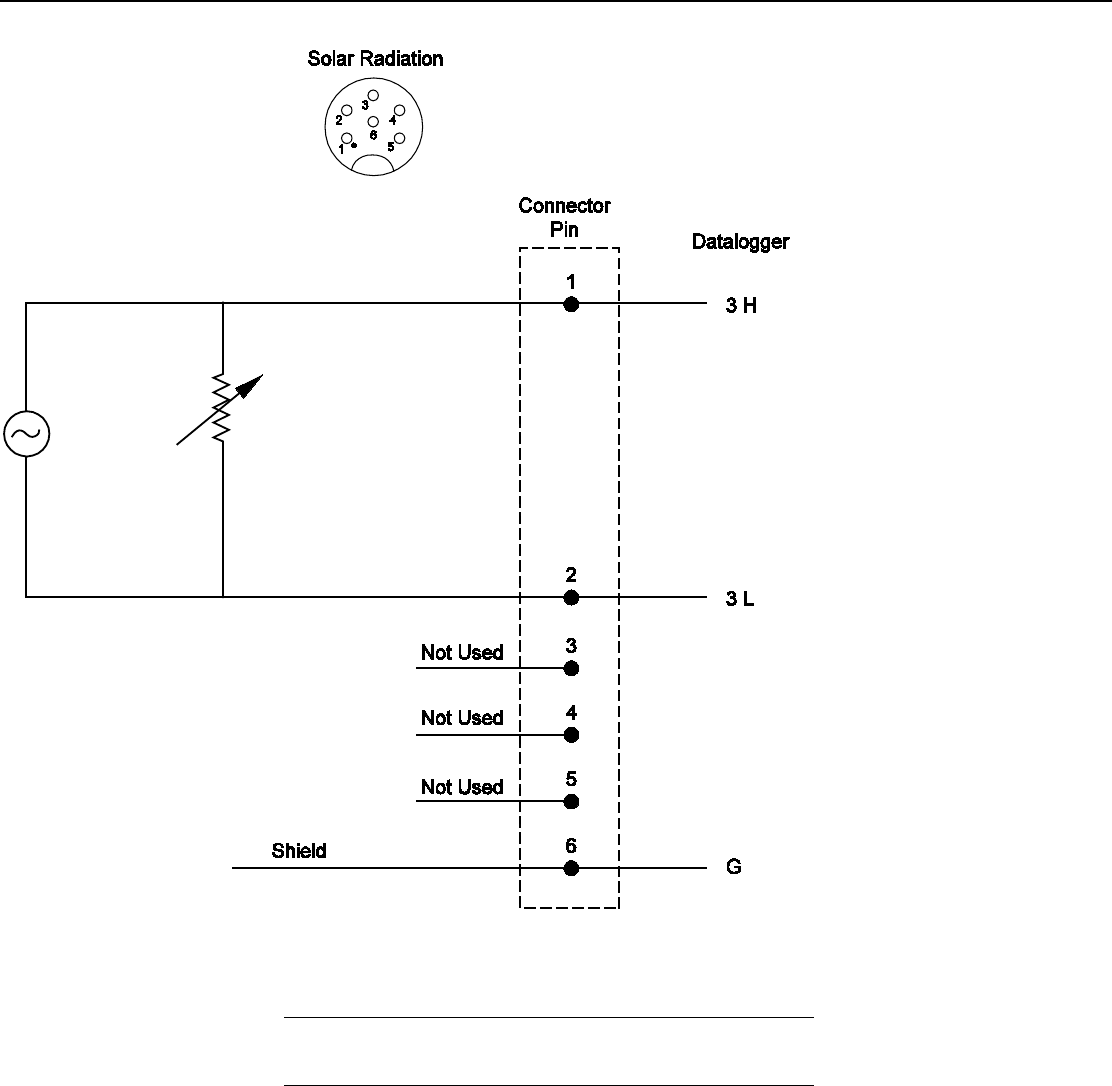
FIGURE 4-6. Schematic of CS305-ET Solar Radiation Sensor and
Connector Solar Radiation
The T106 used a Licor LI200X-ET Solar Radiation Sensor with
OHM readings of 450 to 650.
NOTE
Apogee
Solar Radiation
Sensor
10 to 20 OHMS
66