Owner's Manual

49-1000211 Rev. 0 17
INSTALLATION INSTRUCTIONS
Installation Instructions
MEASURE THE CABINET OPENING
ACCORDING TO THE WIDTH OF THE
REFRIGERATOR
Measure width of cabinet opening where refrigerator will be placed, B.
Be sure to account for any countertop overhang, baseboard thickness
DQGDQ\FOHDUDQFHGHVLUHG:LGWK%VKRXOGQRWEHOHVVWKDQ´´
(83.3 cm - 91.4 cm) (depending on model). The refrigerator will be
placed approximately in the middle of this opening.
Back Wall
Front
Right
Side
REFRIGERATOR
B
Baseboard
Thickness or
Countertop
Overhang
(Whichever is
Larger) Plus
Any Desired
Clearance
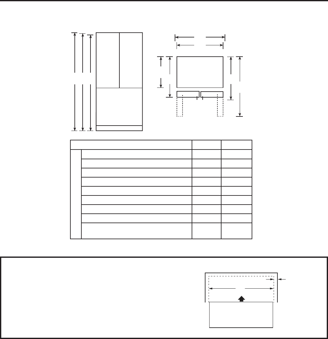
APPLIANCE DIMENSIONS
H
E
D
G
F
I
A
B C
CWE19S CFE26K
Height to top of door (in.) A
69-7/8 69-7/8
Height to top of hinge (in.) B 69-3/4 69-3/4
Height to top of case (in.) C 68-5/8 68-5/8
Case depth without door (in.) D 24-1/8 29-1/2
Case depth less door handle (in.) E 29 33-7/8
Case depth with door handle (in.) F 31-1/8 36-7/16
Depth with fresh food door pen 90° (in.) G 42 48-3/4
Width (in.) H 32-3/4 35-5/8
Width with door open 90 inc. door handle
(in.) I
41 43-13/16
OVERALL DIMENSIONS










