Install Guide

49-1000211 Rev. 0 17
Instrucciones de Instalación
MIDA LA ABERTURA DEL GABINETE DE ACUERDO CON EL ANCHO
DEL REFRIGERADOR
Mida el ancho de la abertura del gabinete donde el refrigerador será
FRORFDGR³%´$VHJ~UHVHGHWHQHUHQFXHQWDFXDOTXLHUSDUWHVDOLHQWH
de la mesada, el grosor del rodapié y cualquier claro deseado.
(ODQFKR³%´QRGHEHUtDVHULQIHULRUDHQWUH´\´FP
91.4 cm) (dependiendo del modelo). El refrigerador será ubicado
aproximadamente en el medio de esta abertura.
El Grosor
del Rodapié
o el Espacio
Saliente de
la Mesada
(Cualquiera Sea
Más Grande)
Además de
Cualquier Claro
Deseado
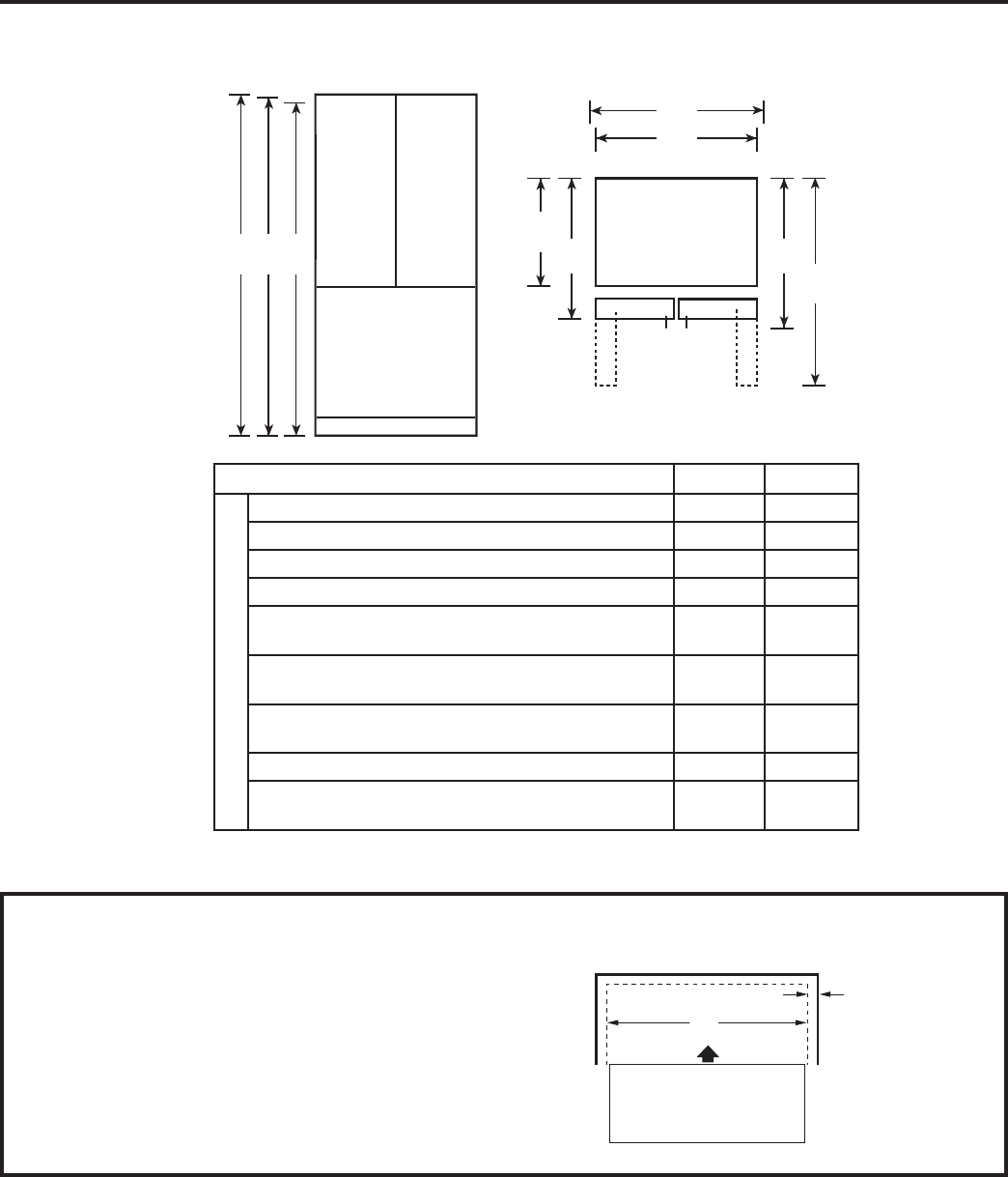
DIMENSIONES DEL ELECTRODOMÉSTICO
H
E
D
G
F
I
A
B C
Back Wall
Front
Right
Side
REFRIGERATOR
B
Pared Trasera
Lado
Derecho
5()5,*(5$'25
Frente
CWE19S CFE26K
Altura hasta la parte superior de la puerta (pulg.) A
69-7/8 69-7/8
Altura hasta la parte superior de la bisagra (pulg.) B 69-3/4 69-3/4
Altura hasta la parte superior del gabinete (pulg.) C 68-5/8 68-5/8
Profundidad del gabinete sin puerta (pulg.) D 24-1/8 29-1/2
Profundidad del gabinete sin la manija de la puerta
(pulg.) E
29 33-7/8
Profundidad del gabinete con la manija de la puerta
(pulg.) F
31-1/8 36-7/16
Profundidad con la puerta de limentos frescos
abierta a 90° (pulg.) G
42 48-3/4
Ancho (pulg.) H 32-3/4 35-5/8
Ancho con la puerta abierta a 90° con la manija de la
puerta (in.) I
41 43-13/16
DIMENSIONES TOTALES
INSTRUCCIONES DE INSTALACIÓN