Owner's Manual

56
NOTICE
Use this table only if all of the following conditions
are met:
1) 50 Ft. maximum plus 3 ells from Meter to furthest
Module Gas Connection
2) 0.5 PSIG Maximum Gas Pressure
3) 0.3 Inch Water Column Pressure Drop
4) Specic Gravity of Natural Gas = 0.64 to 0.70
Propane = 1.50 to 1.63
5) Heating value of
Natural Gas = 1000 Btu/Ft
3
Propane Gas = 2500 Btu/Ft
3
Otherwise, refer to the Alternate Method of Gas Pipe
Sizing in 4.4.
To use this table: (1) Total the Input MBH (from
Figure 2-3) of all modules to be supplied by the
gas pipe (and/or tting) to be sized (2) Locate this
Total MBH in the left column (3) Move to the right
to the appropriate gas column (4) Read the pipe
and/or tting size.
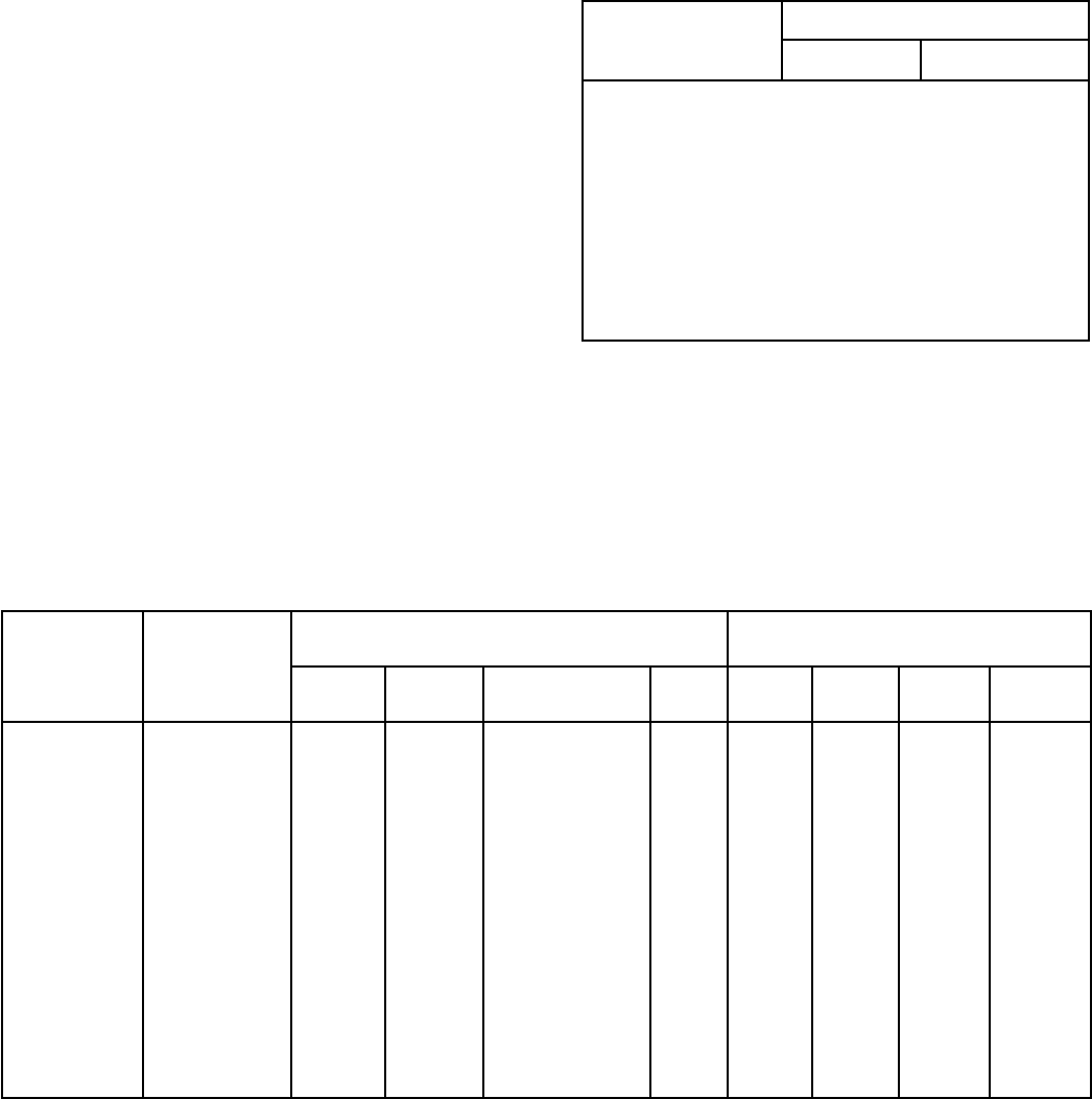
FIGURE 4-3
EQUIVALENT LENGTH OF FITTINGS AND VALVES - GAS PIPE (FT)
TO USE THIS TABLE: (1) ENTER LEFT HAND COLUMN AT REQUIRED PIPE SIZE. (2) MOVE TO THE RIGHT
TO THE RIGHT TO THE COLUMN FOR THE TYPE OF FITTING. (3) READ THE EQUIVALENT LENGTH OF
STRAIGHT PIPE FOR THAT ONE FITTING. (4) TOTAL THE EQUIVALENT LENGTH FOR EVERY FITTING IN
THE SUPPLY LINE. (5) ADD THE TOTAL EQUIVALENT LENGTH FOR FITTINGS TO THE MEASURED LENGTH
OF STRAIGHT PIPE TO OBTAIN THE EQUIVALENT LENGTH OF THE SUPPLY LINE.
FIGURE 4-4
Total Input MBH of
Module(s) Served
by Pipe/Fitting
Pipe/Fitting Size (NPT)
Natural Gas Propane Gas
264. - 330. 1¼" 1"
396. 1¼" 1¼"
462. - 660. 1½" 1¼"
726. - 990. 2" 1½"
1056. - 1254. 2" 2"
1320. - 1980. 2½" 2"
2046. - 3102. 3" 2½"
3168. - 3564. 3" 3"
3630. - 5610.
4" 3"
Nominal
Pipe Size,
In.
Inside Dia.,
Schedule 40,
In.
Screwed Fittings
Valves (screwed, anged, or
welded)
45° Ell 90° Ell
180° Close
Return Bends
Tee Gate Globe Angle
Swing
Check
½ 0.622 0.73 1.55 3.47 3.10 0.36 17.3 8.65 4.32
¾ 0.824 0.96 2.06 4.60 4.12 0.48 22.9 11.4 5.72
1 1.019 1.22 2.62 5.82 5.24 0.61 29.1 14.6 7.27
1¼ 1.380 1.61 3.45 7.66 6.90 0.81 38.3 19.1 9.58
1½ 1.610 1.88 4.02 8.95 8.04 0.94 44.7 22.4 11.2
2 2.067 2.41 5.17 11.5 10.3 1.21 57.4 28.7 14.4
2½ 2.469 2.88 6.16 13.7 12.3 1.44 68.5 34.3 17.1
3 3.068 3.58 7.67 17.1 15.3 1.79 85.2 42.6 21.3
4 4.026 4.70 10.1 22.4 20.2 2.35 112 56.0 28.0
5 5.047 5.88 12.6 28.0 25.2 2.94 140 70.0 35.0










