Owner's Manual
Manuals
Brands
Burnham Manuals
Atmospheric Boiler
Burnham Series 8H/8HE Boiler
51
52
53
54
55
56
57
58
59
60
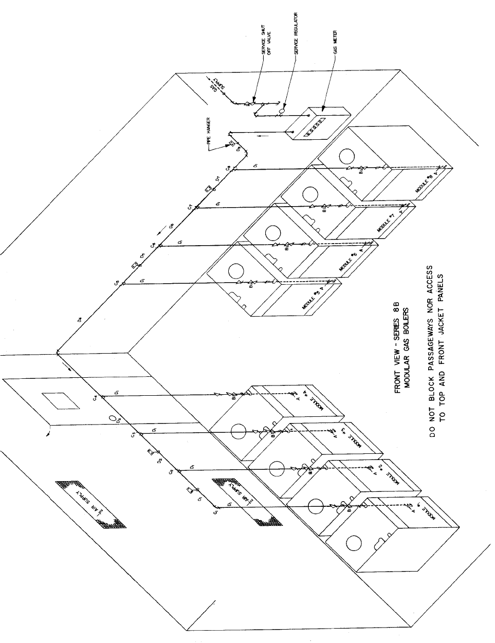
54
FIGURE 4-1
RECOMMENDED GAS SUPPL
Y PIPING - 1
THRU 8 MODULES IN LINE OR CORNERED.
(ALL
PIPING SHOWN SUPPLIED BY INST
ALLER)
1
...
...
52
53
54
55
56
...
...
72