Owner's Manual
Manuals
Brands
Burnham Manuals
Atmospheric Boiler
Burnham Series 8H/8HE Boiler
41
42
43
44
45
46
47
48
49
50
48
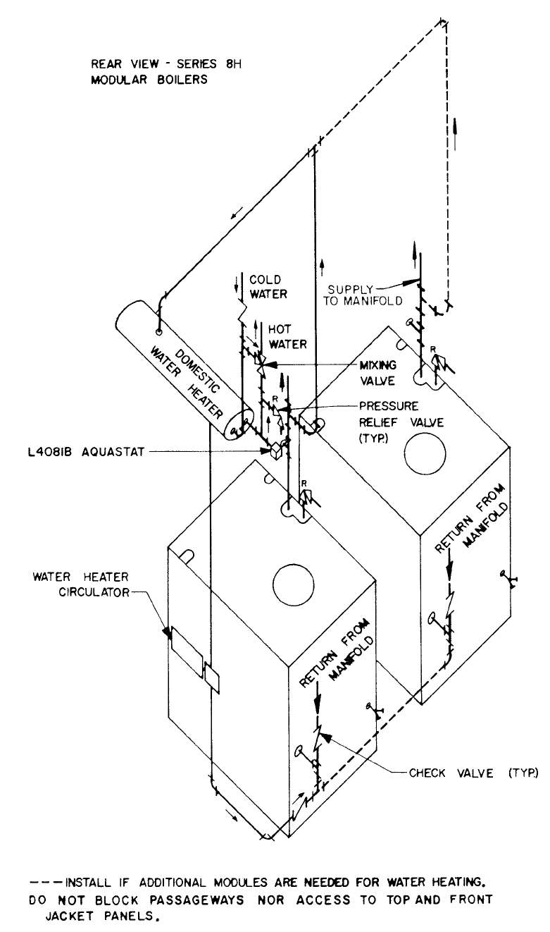
FIGURE 3-14
RECOMMENDED W
A
TER PIPING FOR DOMESTIC WA
TER HEA
TER
1
...
...
46
47
48
49
50
...
...
72