Owner's Manual
Manuals
Brands
Burnham Manuals
Atmospheric Boiler
Burnham Series 8H/8HE Boiler
31
32
33
34
35
36
37
38
39
40
40
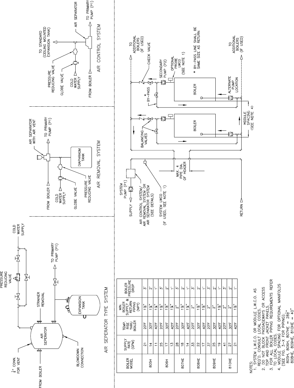
PIPING DIAGRAM (2 BOILERS), PRIMAR
Y/SECONDARY
WITH BY
-P
ASS AND SYSTEM PUMP
FIGURE 3-2
1
...
...
38
39
40
41
42
...
...
72