Owner's Manual
Manuals
Brands
Burnham Manuals
Atmospheric Boiler
Burnham Series 8H/8HE Boiler
31
32
33
34
35
36
37
38
39
40
39
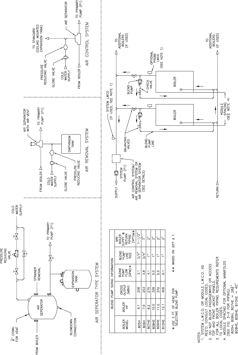
PIPING DIAGRAM (2 BOILERS), P
ARALLEL WITH BLEND PUMP
AND SYSTEM PUMP
FIGURE 3-1
1
...
...
37
38
39
40
41
...
...
72