Owner's Manual
Manuals
Brands
Burnham Manuals
Atmospheric Boiler
Burnham Series 8H/8HE Boiler
21
22
23
24
25
26
27
28
29
30
21
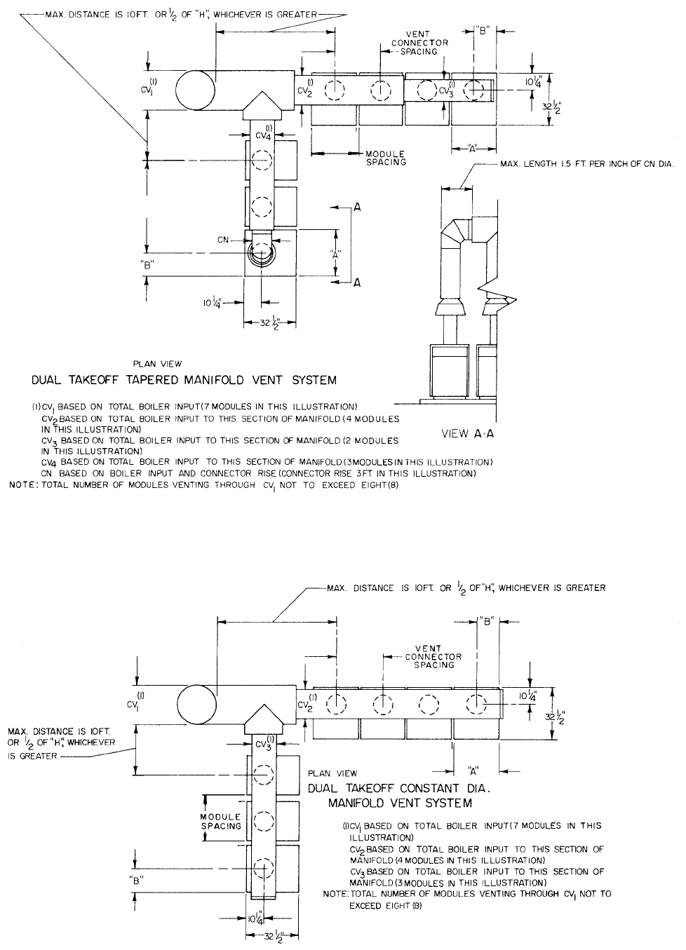
FIGURE 2-4
FIGURE 2-5
1
...
...
19
20
21
22
23
...
...
72