Owner's Manual

20
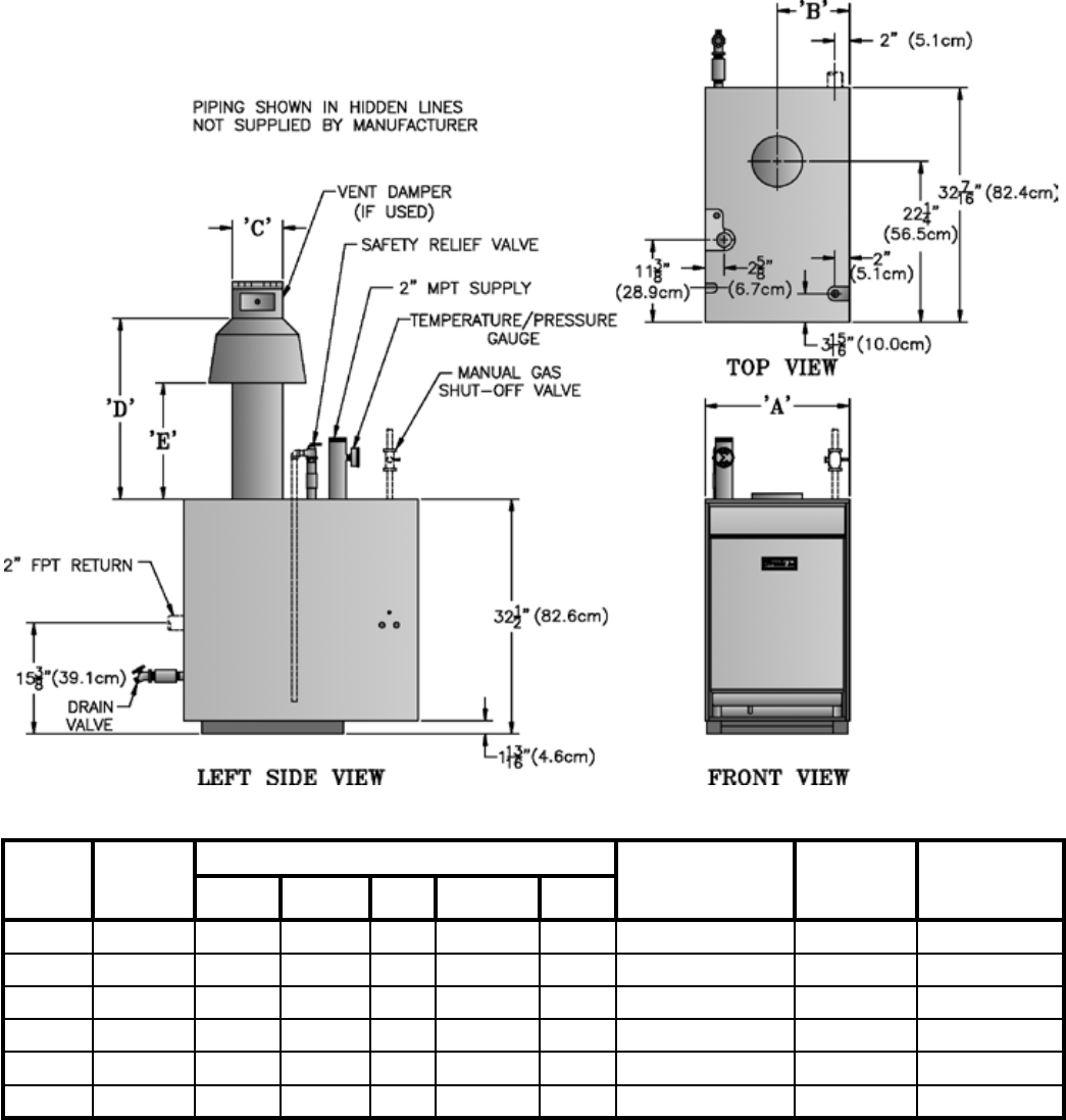
FIGURE 2-3
Boiler
Model
Input
(MBH)
Dimensions (inch)
Recommended
Chimney Size
(Round)
Water
Content
(Gallons)
Approx.
Shipping
Weight (LB)
"A' "B" "C" "D" "E"
805H 252 20 10 7 24-13/16 16-1/8 7" dia. x 15 ft. 11.9 680
806H 315 23-3/4 11-7/8 8 27-13/16 18 8" dia. x 15 ft. 13.9 770
807HE 340 27-1/2 13-3/4 9 27-13/16 18 8" dia. x 15 ft
.
15.9 870
808HE 410 31-1/4 15-5/8 9 30-13/16 20 8" dia. x 15 ft 17.9 950
809HE 460 35 17-1/2 10 33-1/2 22 10" dia. x 15 ft 19.9 1040
810HE 505 38-3/4 19-3/8 10 33-1/2 22 10" dia. x 15 ft 21.9 1140
(1) Specialbaserequiredforinstallationsoncombustibleooring;adds4-3/4"toboilerheight(oortojackettoppanelis37-1/4").
(2) Gas connection size: 1 NPT
(3) Maximum Allowable Working Pressure: 50 psi (Water Only)
(4) Items shown in hidden lines supplied by installer.










