Owner's Manual
Manuals
Brands
Burnham Manuals
Atmospheric Boiler
Burnham Series 8H/8HE Boiler
11
12
13
14
15
16
17
18
19
20
11
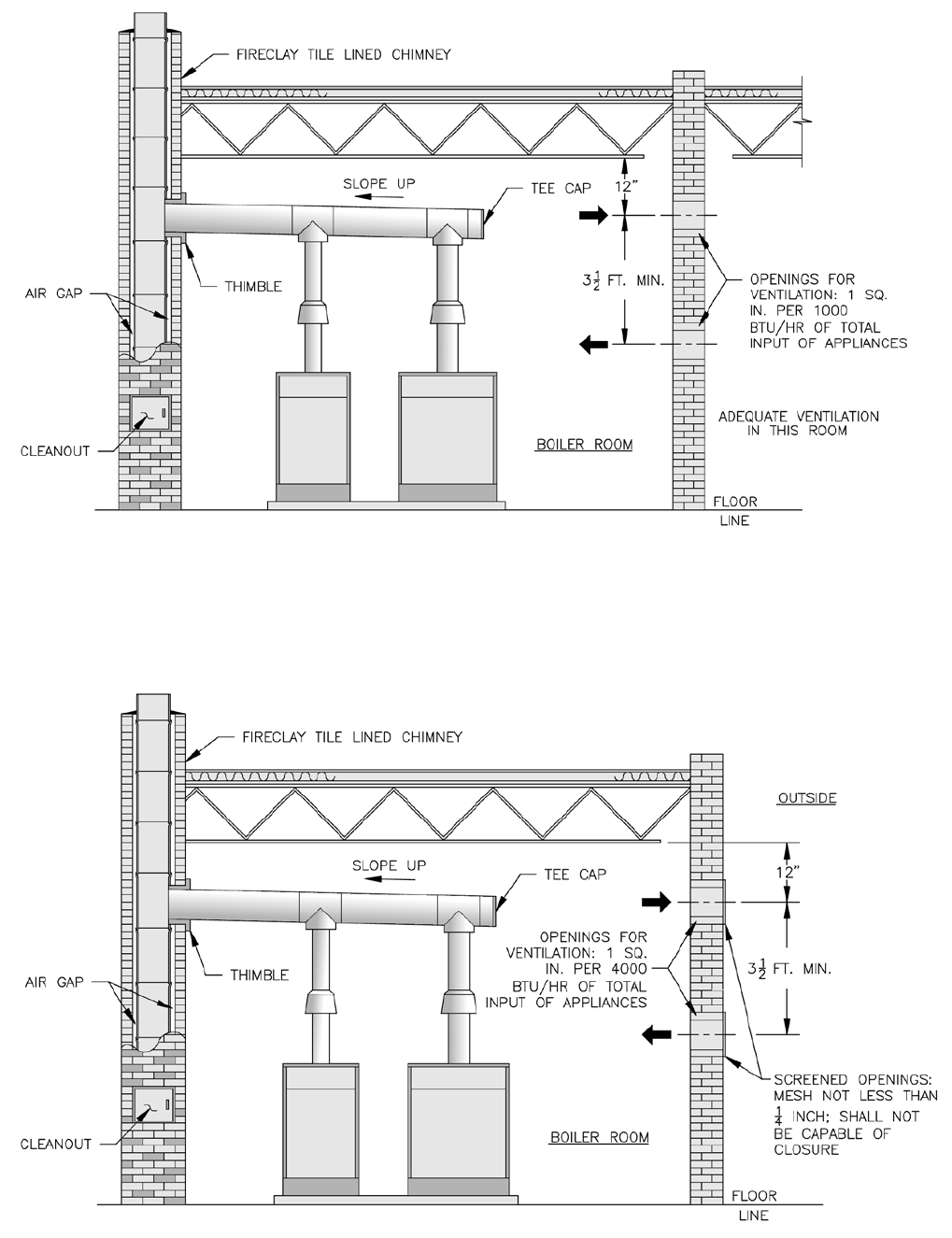
CONFINED SP
ACE, VENTILA
TION
AIR PROVIDED
FROM INSIDE OF BUILDING
FIGURE 1-2
CONFINED SP
ACE, VENTILA
TION
AIR PROVIDED
FROM OUTDOORS
FIGURE 1-3
1
...
...
9
10
11
12
13
...
...
72