Owner's Manual
Manuals
Brands
Burnham Manuals
Domestic Appliances
8H/8HE
41
42
43
44
45
46
47
48
49
50
41
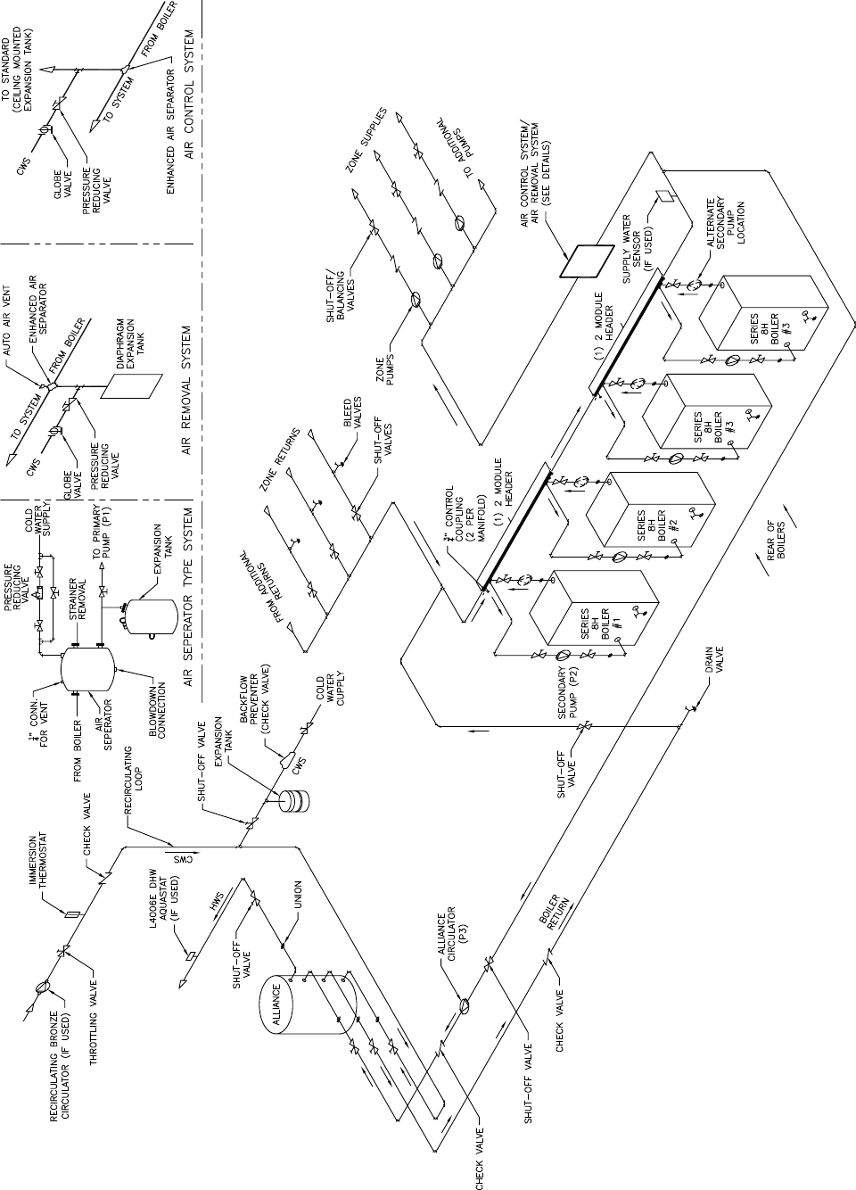
PIPING DIAGRAM - ZONE PUMPS, PRIMAR
Y/SECONDARY
W/ ALLIANCE DHW & RECIRC. LOOP
WITH MODULAR MANIFOLDS
FIGURE 3-3
1
...
...
39
40
41
42
43
...
...
72