Owner's Manual
Manuals
Brands
Burnham Manuals
Domestic Appliances
8H/8HE
11
12
13
14
15
16
17
18
19
20
15
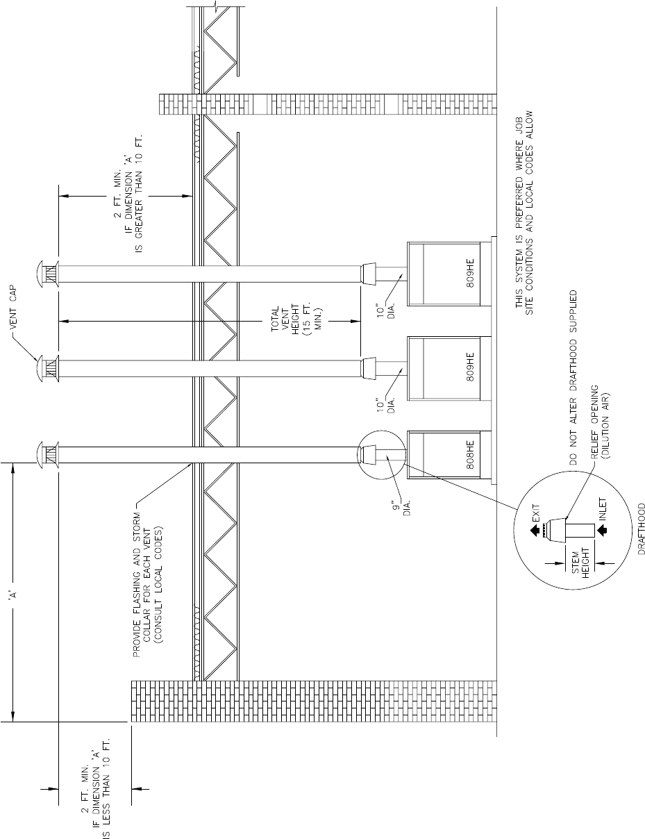
INDIVIDUAL VENTS
TWO THROUGH EIGHT MODULES
FIGURE 1-7
1
...
...
13
14
15
16
17
...
...
72