Owner's Manual
Manuals
Brands
Burnham Manuals
Domestic Appliances
8H/8HE
11
12
13
14
15
16
17
18
19
20
13
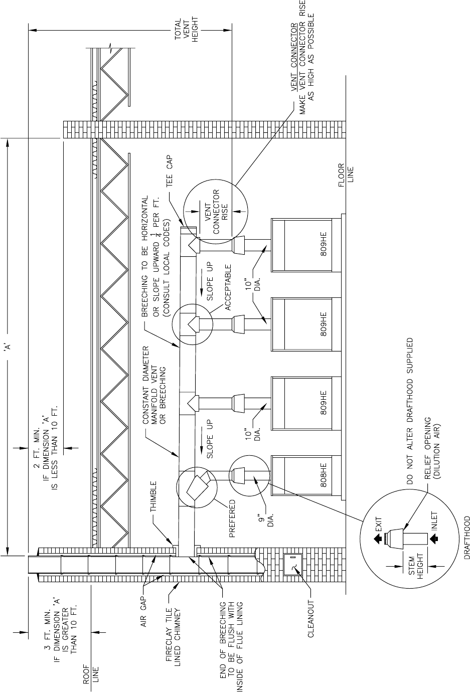
CONST
ANT DIAMETER MANIFOLD VENT OR BREECHING
TWO THROUGH EIGHT MODULES
FIGURE 1-5
1
...
...
11
12
13
14
15
...
...
72