Operation Manual

34
1 Installatie
1.1 Voorwoord
Bij eventueel schade aan de AQGAS
gasboiler onmiddellijk een erkend
installateur of de dienst-na-verkoop van
Bulex raadplegen. Laat voor uw eigen
veiligheid de installatie, onderhouds-
en herstellingswerkzaamheden alsmede
de eerste ingebruikname uitsluitend door
een erkend installateur uitvoeren.
De Bulex gasboiler AQGAS moet door
een erkend installateur geïnstalleerd
worden die verantwoordelijk is voor het
naleven van de bestaande voorschriften,
normen en richtlijnen.
Deze is tevens verantwoordelijk voor
de controle en eventuele herstellingen
alsmede wijzigingen van de gasdruk.
Controleer eveneens of de gassoort
vermeld op de kenplaatgegevens van
de AQGAS-boiler overeenstemt met de
gasinstallatie.
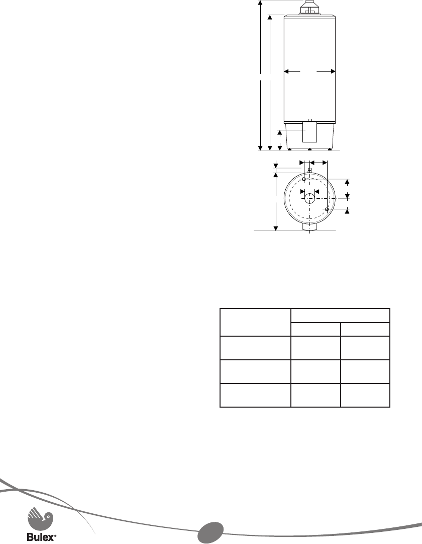
1.2 Afmetingen (mm)
A
B
198
2
4
3
1
5
1
Ø 51
0
50
40
121
90
580
101
150
Legende
1 Trekonderbreker
2 Gasaansluiting
3 Warmwateraansluiting R 3/4
4 Koudwateraansluiting R 3/4
5 Magnesium beschermingsanode
Toestel
Maat (mm)
A B
AQGAS C130L
AQGAS C130L
1340 1205
AQGAS C160L
AQGAS C160L
1530 1395
AQGAS C190L
AQGAS C190L
1720 1585
1.3 Opstelling
De lucht nodig voor de verbranding moet
vrij zijn van chemische stoffen zoals: fluor,
chloor, zwavel (bv.: kapsalon, drukkerijen,
… enz.).










