Operation Manual

36
Vooraleer de gasleiding aan te sluiten,
eerst de volledige gasleiding doorblazen
zodat eventuele verstoppingen of
gedeeltelijke verstoppingen door ophoping
van onreinheden, vet, dichtingsmateriaal,
… enz verwijderd worden.
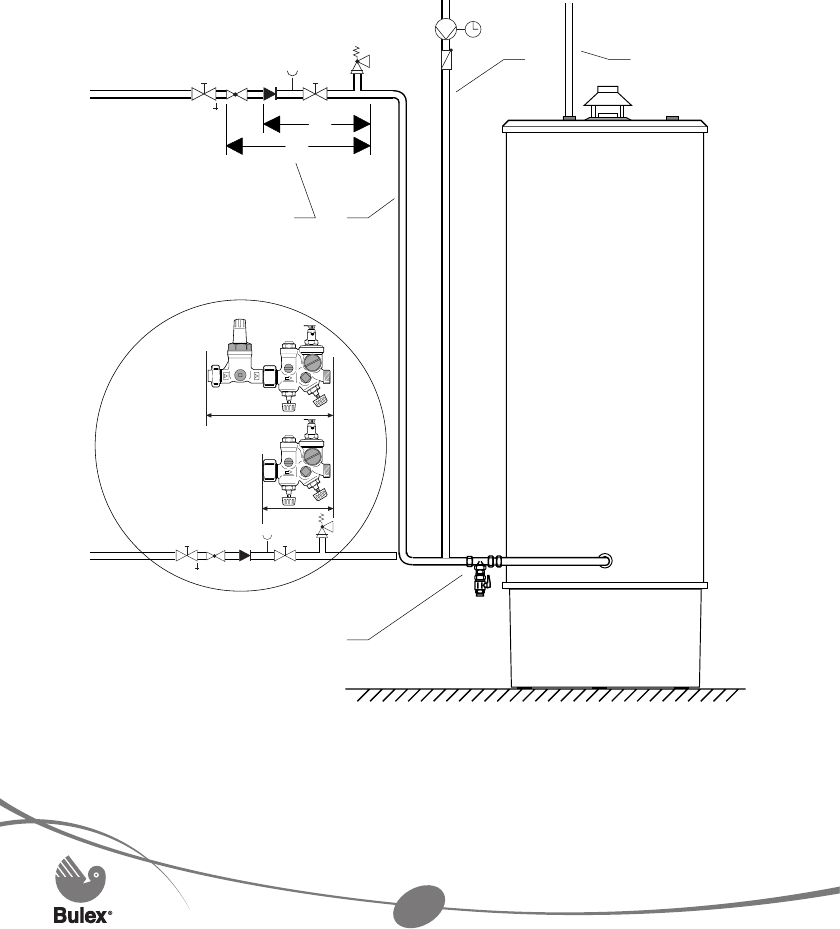
1.5 Wateraansluiting
4
5
1
3
2
I
II
II
I
Legende
1 Koudwatertoevoerleiding
2 Veiligheidsgroep sanitair
3 Aflaatkraan
4 Warmwaterleiding
5 Omloopcircuit










