Ventilation Hood User Manual

6
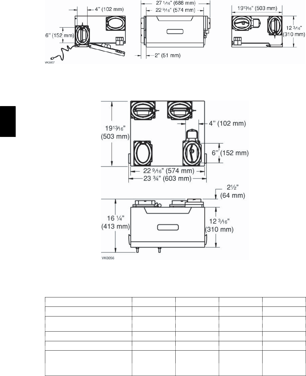
A05426
Fig. 2 -- HRVBBSHA Unit Dimensions
A05425
Fig. 3 -- HRVBBSVA Unit Dimensions
Physical data
Model
HRVBBLHA1150 HRVBBLHA1250 HRVBBSVA1100 HRVBBSHA1100
Port Locations Side Side Top Side
C
o
r
e
T
y
p
e
P
o
l
y
p
r
o
p
y
l
e
n
e
P
o
l
y
p
r
o
p
y
l
e
n
e
P
o
l
y
p
r
o
p
y
l
e
n
e
P
o
l
y
p
r
o
p
y
l
e
n
e
C
ore
T
ype
P
o
l
ypropy
l
ene
Cross Flow
P
o
l
ypropy
l
ene
Cross Flow
P
o
l
ypropy
l
ene
Cross Flow
P
o
l
ypropy
l
ene
Cross Flow
Weight — lb (kg) 65 (29.5) 73 (33.2) 42 42
Shipping Weight — lb (kg) 75 (34) 83 (37.6) 48 48
Shipping Dimensions (in.)
Height
Width
Depth
23-1/16
36-1/16
17-13/16
22-15/16
35-1/16
22-15/16
25.5
17.5
23.0
30.0
15.0
23.0
HRV










