Installation Guide

MODELOS EW5630SS • EW5636SS
Página 21
INSTALE EL CABLEADO INSTALE EL SOPORTE
DE MONTAJE DE LA CAMPANA
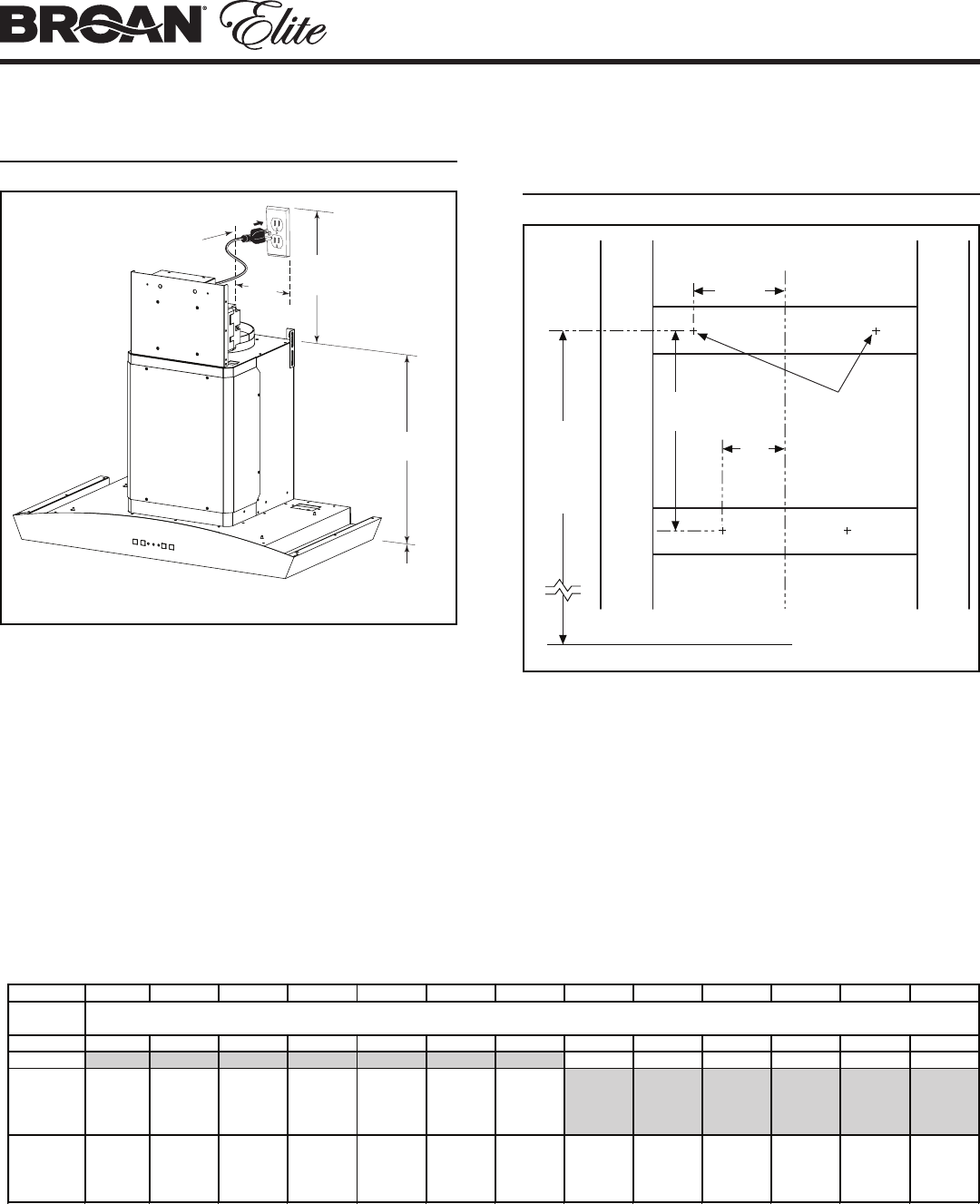
1. Construya un bastidor de madera en la pared que quede al ras
de la superficie interior de los montantes de la pared. Asegúrese
de que el bastidor esté centrado en el lugar de la instalación.
NOTA
La distancia de la campana por encima de la estufa es: Mínima
de 24 pulg. (61 cm) y máxima de 36 pulg. (91 cm). Los cielos
rasos de 9 y 10 pies (2.7 y 3 m) peude requieren una extensión
del tubo de humos, modelo FXNE56SS dependiendo de la
altura de la instalación (se compra por separado). Consulte
información adicional sobre la altura de la instalación en el
cuadro siguiente.
2. Después de terminar con la superficie de la pared, sujete (2)
tornillos de 4 x 38 mm en los lugares mostrados arriba. NO
APRIETE totalmente los tornillos.
12 pulg.
(30 cm)
MÁX.
LÍNEA CENTRAL
DE LA CAMPANA
15¼ pulg.
(39 cm)
DE 24 A 36 PULG.
(61 A 91 CM)
POR ENCIMA
DE LA ESTUF
A
5 pulg.
(13 cm)
MÁX.
INSTRUCCIONES PARA LA PUESTA A TIERRA
Este aparato debe estar conectado a tierra. En caso de un
cortocircuito eléctrico, la puesta a tierra reduce el riesgo de una
descarga eléctrica al suministrar un cable de escape para la corriente
eléctrica. Este aparato está equipado con un cordón que tiene un
cable con una clavija a tierra. La clavija debe conectarse a una toma
eléctrica que esté instalada y conectada a tierra adecuadamente.
Coloque el tomacorriente eléctrico dentro del espacio cubierto por el
tubo de humos decorativo y donde no interfiera con el conducto
redondo. Asegúrese de que el tomacorriente no esté a más de 12 pulg.
(30 cm) de la parte superior del chasis de la campana y que el
tomacorriente no interfiera con un área de sujeción de soportes o
donde el tubo de humos toque la pared.
ESTUFA DE 36 pulg. (91 cm)
DE ALTO
AQUÍ LOS
TORNILLOS
de 4 x 38 mm
A
VEA EL
CUADRO
ABAJO
4
7
/16 pulg.
(11 cm)
13
7
/8 pulg.
(35 cm)
3 pulg.
(8 cm)
C
L
24" 25"26" 27" 28"29" 30" 31" 32" 33" 34" 35" 36"
39-7/8"40-7/8" 41-7/8"42-7/8" 43-7/8"44-7/8" 45-7/8" 46-7/8" 47-7/8" 48-7/8" *49-7/8" *50-7/8" *51-7/8"
**46-7/8" **47-7/8" **48-7/8" 49-7/8" 50-7/8" 51-7/8"
39-7/8"40-7/8" 41-7/8"42-7/8" 43-7/8"44-7/8" 45-7/8"
39-7/8"40-7/8" 41-7/8"42-7/8" 43-7/8"44-7/8" 45-7/8" 46-7/8" 47-7/8" 48-7/8" 49-7/8" 50-7/8" 51-7/8"
* No se recomienda para configuraciones sin conductos
** El alistonado de recirculación sin conductos quedará expuesto en una configuración con conductos
Distancia deseada de la campana (por encima de la estufa de 36 pulg. (91 cm) de alto)
Ubicación de los tornillos de montaje superiores (distancia por encima de la estufa de 36 pulg. (91 cm) de alto –
(Dimensión “A”)
Altura del
cielo raso
8 pies (2.4 m)
9 pies (2.7 m)
9 pies
(2.7 m) con
FXNE56SS
10 pies
(3 m) con
FXNE56SS










