Installation Guide

MODELS EW5630SS • EW5636SS
Page 3
INSTALL THE WIRING INSTALL THE HOOD MOUNTING
SUPPORT
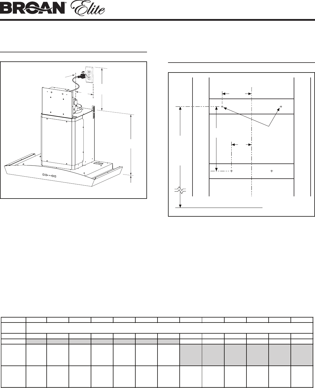
1. Construct wood wall framing that is flush with interior
surface of wall studs. Make sure the framing is centered over
installation location.
NOTE
Hood distance above cooktop is: Minimum 24”, Maximum 36”.
9-ft. and 10-ft. ceilings may require Flue Extension, Model
FXNE56SS depending on installation height (purchase
separately). See chart below for additional installation height
information.
2. After wall surface is finished, fasten (2) 4mm x 38mm screws
at the locations shown above. DO NOT TIGHTEN screws all
the way.
12”
MAX.
HOOD
CENTERLINE
5”
MAX.
15¼”
24” TO 36”
ABOVE COOKTO
P
GROUNDING INSTRUCTIONS
This appliance must be grounded. In the event of an electrical
short circuit, grounding reduces the risk of electric shock by
providing an escape wire for the electric current. This appliance
is equipped with a cord having a grounding wire with a grounding
plug. The plug must be plugged into an outlet that is properly
installed and grounded.
Position the electrical outlet within the space covered by the
decorative flue and where it will not interfere with the round
duct. Make sure the outlet is no further than 12” from the top
of the hood chassis and that the outlet does not interfere with
a mounting bracket fastening area or where the decorative flue
touches the wall.
C
L
36” HIGH COOKT
OP
13
7
/8 ”
3 ”
4
7
/16 ”
4mm x 38mm
SCREWS
HERE
A
SEE
CHART
BELOW
24" 25" 26"27" 28" 29" 30" 31" 32" 33" 34" 35" 36"
Ceiling
Height
8 Feet 39-7/8" 40-7/8" 41-7/8"42-7/8" 43-7/8" 44-7/8" 45-7/8" 46-7/8" 47-7/8" 48-7/8" *49-7/8" *50-7/8" *51-7/8"
9 Feet **46-7/8"**47-7/8" **48-7/8" 49-7/8" 50-7/8" 51-7/8"
9 Feet
with
FXNE56SS
39-7/8" 40-7/8" 41-7/8"42-7/8" 43-7/8" 44-7/8" 45-7/8"
10 Feet
with
FXNE56SS
39-7/8" 40-7/8" 41-7/8"42-7/8" 43-7/8" 44-7/8" 45-7/8" 46-7/8" 47-7/8" 48-7/8" 49-7/8" 50-7/8" 51-7/8"
* Not recommended for non-ducted configuration
** Non-duct recirculation louvers will be exposed in ducted configuration
Desired Hood Distance (Above 36" High Cooktop)
Upper Mounting Screws Location (Distance above 36" High Cooktop -
(Dimension “A”)










