Installation Guide

MODELS EW5630SS • EW5636SS
Page 2
INSTALL THE DUCTWORK
(Ducted Hoods Only)
1. Decide where the ductwork will run between the hood and
the outside.
2. A straight, short duct run will allow the hood to perform most
efficiently.
3. Long duct runs, elbows and transitions will reduce the
performance of the hood. Use as few of them as possible.
Larger ducting may be required for best performance with
longer duct runs.
4. Install wall cap or roof cap. Connect round metal ductwork
to cap and work back towards the hood location. Use duct
tape to seal the joints between ductwork sections.
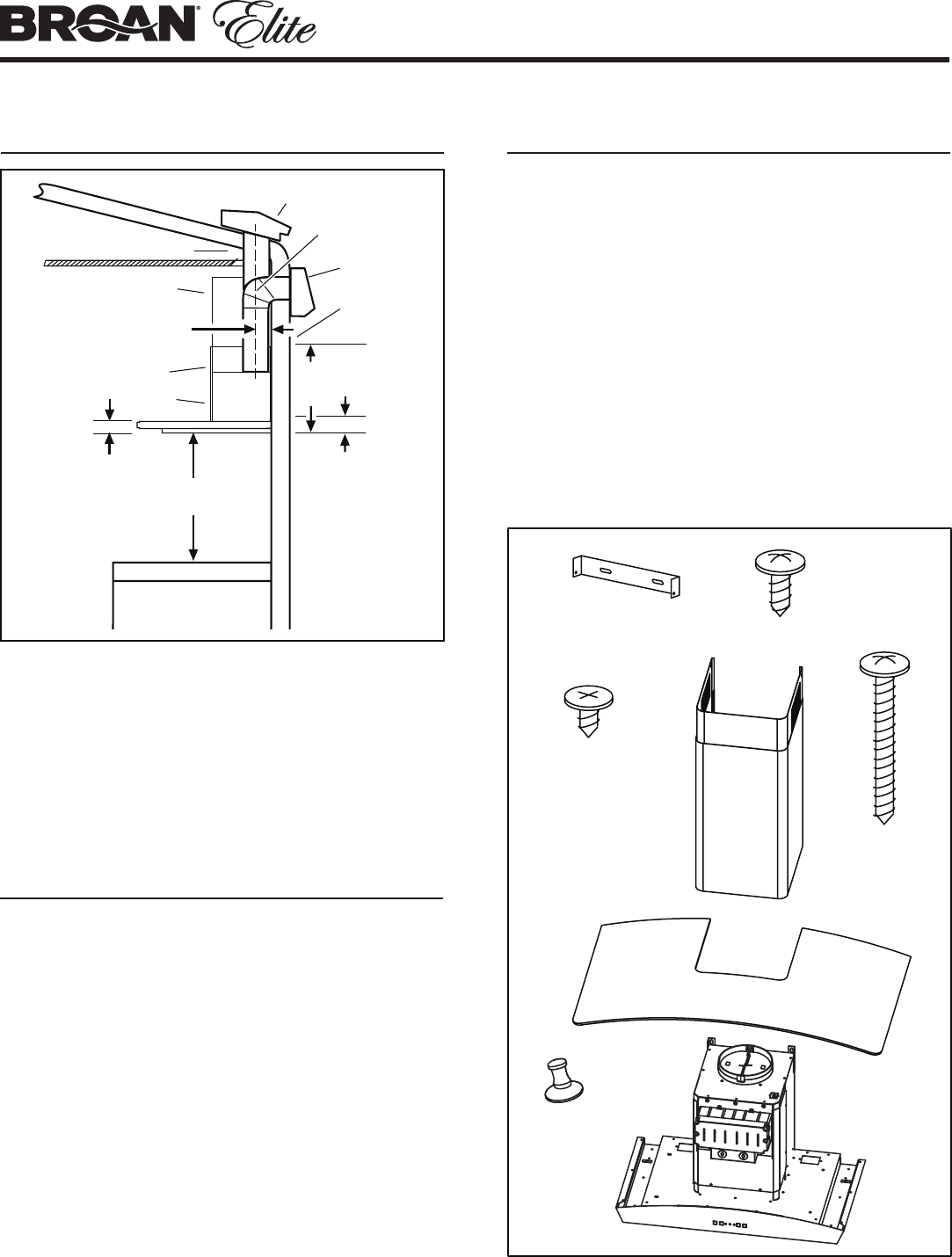
MEASURE THE INSTALLATION
The minimum hood distance above cooktop MUST NOT BE
LESS than 24”.
A maximum of 36” above cooktop is recommended for best
capture of cooking impurities.
Distances over 36” are at the installer and users discretion;
providing that the ceiling height permits.
PREPARE THE HOOD
HOOD
15
7
/
8
” TO CENTER
OF
UPPER BRACKET
HOLES
ROUND
ELBOW
HOOD
MOUNTING
BRACKET
24” TO 36” ABOVE
COOKING
SURFACE
3½”
DECORATIVE FLUE
6” ROUND DUCT
ROOF
CAP
WALL CAP
2” TO CENTER
OF
LOWER HOOD
CHASIS
HOLES
3¾” FROM WALL
TO
CENTER
LINE
OF
DUCT
DECORATIVE FLUE
Unpack hood and check contents. You should receive:
1 - Hood Assembly
1 - Glass Canopy
1 - Decorative Flue Assembly (consisting of upper and lower flue)
1 - Upper Flue Mounting Bracket
1 - Aluminum Grease Filter (installed on hood)
2 - 35W MR16 GU10 Halogen Lamps (installed on hood)
1 - Parts Bag containing:
6 - Mounting Screws (4mm x 38mm Cross Recessed Pan Head)
2 - Mounting Screws (4mm x 12mm Cross Recessed Pan Head)
4 - Mounting Screws (.188” x .250” Cross Recessed Flat Head)
1 - Suction Cup Tool
1 - Installation Manual
6 MOUNTING
SCREWS
(4mm x 38mm
Cross Recessed
Pan Head)
2 MOUNTING
SCREWS
(4mm x 12mm
Cross Recessed
Pan Head)
DECORATIVE
FLUE
ASSEMBLY
UPPER
FLUE MOUNTING
BRACKET
4 MOUNTING
SCREWS
(.188” x .250”
Cross Recessed
Flat Head)
BULB
SUCTION
CUP TOOL
GLASS
CANOPY
HOOD
ASSEMBLY










