Installation Instructions

INSTALLATION MANUAL
SAFETY
19
MANUAL DE INSTALACIÓN
INSTALACÍON
19
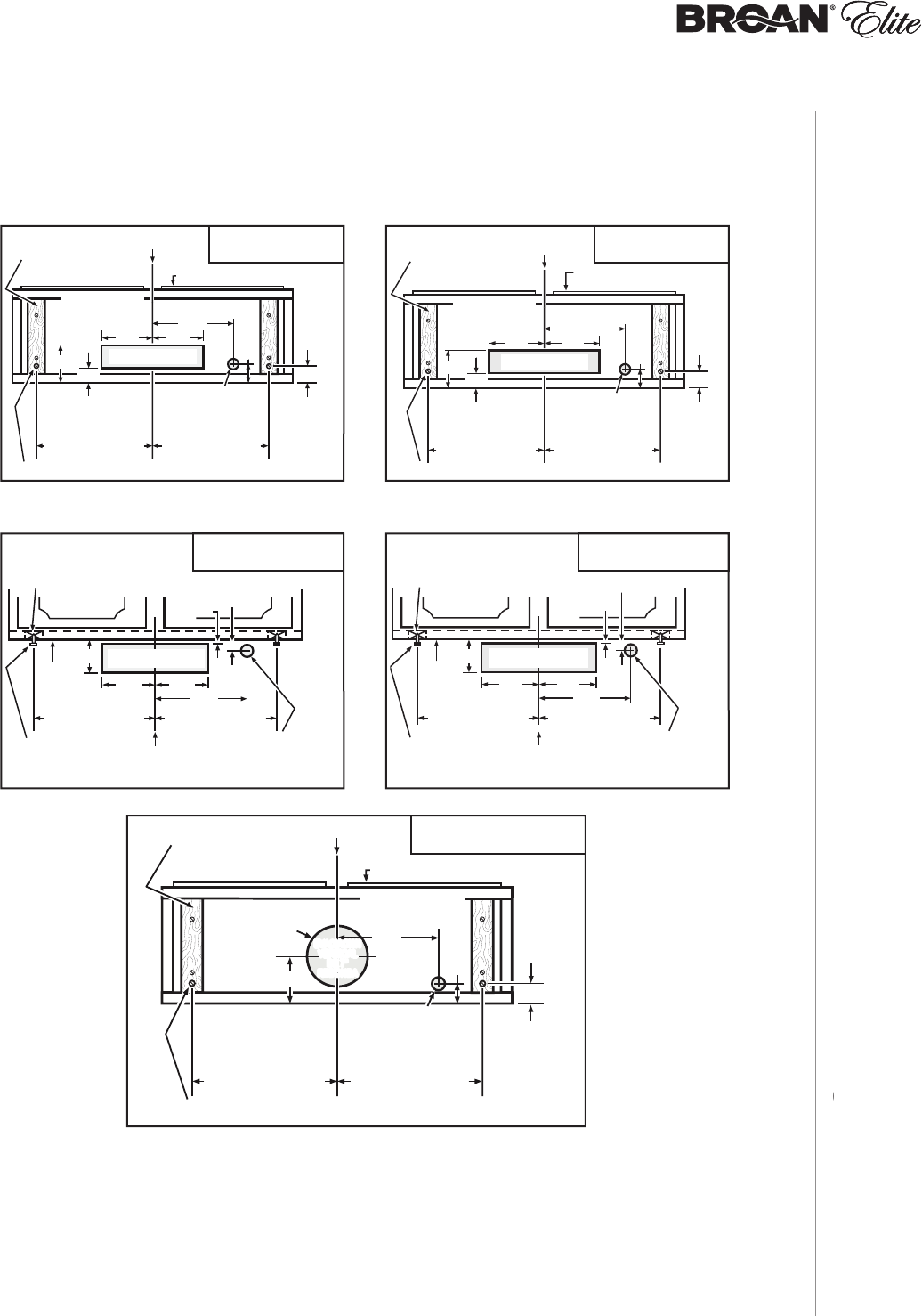
Instalación normal (sin soportes EZ1)
1 ] Use el diagrama adecuado de abajo para colocar los conductos y la alimentación eléctrica
en el armario o en la pared. Para una instalación sin conductos, NO corte el orificio de
acceso al conducto; corte sólo el orificio para el cableado eléctrico.
2 ] Instale parcialmente dos (2) tornillos de montaje de CABEZA REDONDA n.° 8 x 5/8” en el
calzo o en el armario, de acuerdo con el diagrama adecuado de arriba. Los otros dos tornillos
de CABEZA REDONDA n.° 8 x 5/8” estarán utilizados mas tárde. (Los tornillos de montaje
vienen en la bolsa de piezas, pero los calzos de madera y los tornillos de montaje de los
calzos no están incluidos).
4¹¹/16"
1½"
Ǫ
9¾"
LÍNEA
CENTRAL
CALZOS DE MADERA
(
ARMARIO CON PARTE INFERIOR
REBAJADA
ÚNICAMENTE)
PARTE DELANTERA DEL ARMARIO
TORNILLOS TRASEROS DE MONTAJE DE LA CAMPANA (2)
ORIFICIO PARA
ALIMENTACIÓN
ELÉCTRICA (
EN LA PARTE
INFERIOR
DEL ARMARIO)
EVACIACIóN
VERTICAL
DE 7"
REDONDA
EVACUACIÓN
VERTICAL
DE 7"
REDONDA
ORIFICIO DE 8"
DE DIÁMETRO
PARTE INFERIOR
DEL ARMARIO
12Ǭ" (
CAMPANA DE 30")
15Ǭ" (
CAMPANA DE 36")
12Ǭ" (
CAMPANA DE 30")
15Ǭ" (
CAMPANA DE 36")
EVACUACIÓN VERTICAL
DE 7" REDONDA
3Ǭ"
13/16"
3/16"
5¼"
5¼"
9¾"
ORIFICIO PARA
ALIMENTACIÓN ELÉCTRICA
(
EN LA PARED)
LÍNEA
CENTRAL
TORNILLOS TRASEROS
DE MONTAJE DE
LA CAMPANA (2)
PARTE
INFERIOR
DEL ARMARIO
CALZOS DE MADERA
(
ARMARIO CON PARTE INFERIOR
REBAJADA
ÚNICAMENTE)
PARTE DELANTERA DEL ARMARIO
ORIFICIO DE ACCESO PARA
CONDUCTO HORIZONTAL
12Ǭ" (CAMPANA DE 30")
15Ǭ" (
CAMPANA DE 36")
12Ǭ" (
CAMPANA DE 30")
15Ǭ" (
CAMPANA DE 36")
EVACUACIÓN HORIZONTAL
DE 3¼" X 10"
5¼"
5¼"
3/4"
1Ǫ"
1½"
9¾"
4
7
/16"
12Ǭ" (CAMPANA DE 30")
15Ǭ" (
CAMPANA DE 36")
12Ǭ" (
CAMPANA DE 30")
15Ǭ" (
CAMPANA DE 36")
LÍNEA CENTRAL
TORNILLOS TRASEROS DE MONTAJE DE LA CAMPANA (2)
ORIFICIO PARA
ALIMENTACIÓN
ELÉCTRICA (
EN LA PARTE
INFERIOR
DEL ARMARIO)
CALZOS DE MADERA
(
ARMARIO CON PARTE INFERIOR
REBAJADA
ÚNICAMENTE)
PARTE INFERIOR
DEL ARMARIO
PARTE DELANTERA DEL ARMARIO
ORIFICIO DE ACCESO PARA
CONDUCTO VERTICAL
EVACUACIÓN VERTICAL
DE 3¼" X 10"
7¼"
7¼"
L
Í
NEA CENTRAL
3/4"
1⅜"
1½"
9¾"
4
7
/16"
TORNILLOS TRASEROS DE MONTAJE DE LA CAMPANA (2)
ORIFICIO PARA
ALIMENTACIÓN
ELÉCTRICA (
EN LA PARTE
INFERIOR
DEL ARMARIO)
CALZOS DE MADERA
(
ARMARIO CON PARTE INFERIOR
REBAJADA
ÚNICAMENTE)
PARTE INFERIOR
DEL ARMARIO
PARTE DELANTERA
DEL ARMARIO
ORIFICIO DE ACCESO PARA
CONDUCTO VERTICAL
12⅞" (CAMPANA DE 30")
15⅞" (
CAMPANA DE 36")
12⅞" (
CAMPANA DE 30")
15⅞" (
CAMPANA DE 36")
EVACUACIÓN VERTICAL
DE 3¼" X 14"
3⅞"
13/16"
3/16"
7¼"
7¼"
9¾"
PARTE
INFERIOR
DEL ARMARIO
CALZOS DE MADERA
ARMARIO CON PARTE INFERIOR
REBAJADA
ÚNICAMENTE)
PARTE DELANTERA DEL ARMARIO
ORIFICIO DE ACCESO PARA
CONDUCTO HORIZONTAL
ORIFICIO PARA
ALIMENTACIÓN ELÉCTRICA
(
EN LA PARED)
LÍNEA
CENTRAL
TORNILLOS TRASEROS
DE MONTAJE DE
LA CAMPANA (2)
12⅞" (
CAMPANA DE 30")
15⅞" (
CAMPANA DE 36")
12⅞" (
CAMPANA DE 30")
15⅞" (
CAMPANA DE 36")
EVACUACIÓN HORIZONTAL
DE 3¼" X 14"










