manual and_installation_guide

INSTALLATION MANUAL
INSTALLATION
19
Standard Installation (without EZ1 brackets)
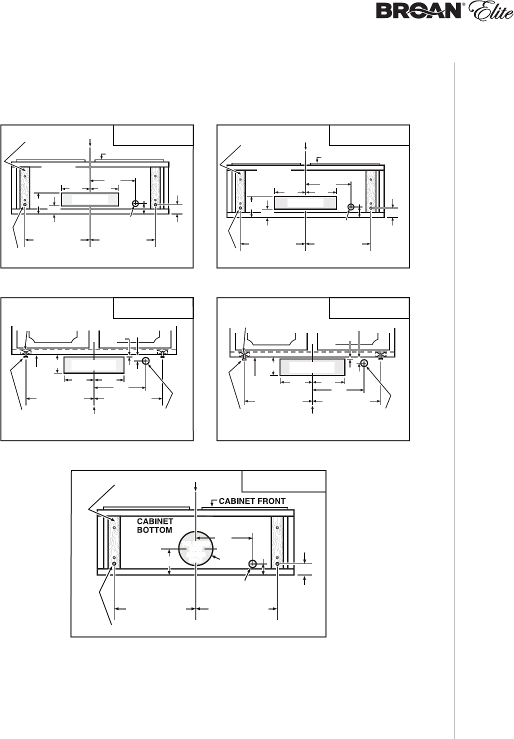
1 ] Use the proper diagram below for placement of ductwork and electrical cutout in cabinet
or wall. For a non-ducted installation, DO NOT cut a duct access hole, only cut the hole for
electrical wiring.
2 ] Install part-way two (2) ROUND HEAD no. 8 x 5/8” mounting screws into shims/cabinet,
according to the proper diagram above, the other 2 ROUND HEAD no. 8 x 5/8” mounting
screws will be used later. (Mounting screws are included in parts bag, but wood shims and
shim mounting screws are not included.)
CABINET
BOTTOM
CABINET FRONT
HORIZONTAL DUCT
ACCESS HOLE
REAR HOOD
MOUNTING
SCREWS (2)
ELECTRICAL
ACCESS HOLE
(
IN WALL)
3Ǭ"
CENTER
LINE
WOOD SHIMS
(
RECESSED-BOTTOM
CABINETS
ONLY)
13/16"
3/16"
5¼"
5¼"
9¾"
12Ǭ" (30"
HOOD)
15Ǭ" (36"
HOOD)
12Ǭ" (30"
HOOD)
15Ǭ" (36"
HOOD)
3¼" X 10"
HORIZONTAL DUCTING
4¹¹/16"
8" DIA.
HOLE
7-IN. ROUND
DUCT
ACCESS
HOLE
7-IN. ROUND
DUCT
ACCESS
HOLE
1½"
Ǫ
9¾"
CENTER LINE
ELECTRICAL ACCESS
HOLE (
IN CABINET BOTTOM)
REAR HOOD MOUNTING SCREWS (2)
WOOD SHIMS
(
RECESSED-BOTTOM
CABINETS
ONLY)
12Ǭ" (30" HOOD)
15Ǭ" (36"
HOOD)
12Ǭ" (30"
HOOD)
15Ǭ" (36"
HOOD)
7-IN. ROUND
VERTICAL DUCTING
VERTICAL DUCT
ACCESS HOLE
5¼"
5¼"
CENTER LINE
ELECTRICAL ACCESS
HOLE (
IN CABINET BOTTOM)
WOOD SHIMS
(
RECESSED-BOTTOM
CABINETS
ONLY)
CABINET FRONT
3/4"
1Ǫ"
1½"
9¾"
4
7
/16"
CABINET
BOTTOM
REAR HOOD MOUNTING SCREWS (2)
12Ǭ" (30" HOOD)
15Ǭ" (36"
HOOD)
12Ǭ" (30"
HOOD)
15Ǭ" (36"
HOOD)
3¼" X 10"
VERTICAL DUCTING
VERTICAL DUCT
ACCESS HOLE
7¼"
7¼"
CENTER LINE
ELECTRICAL ACCESS
HOLE (
IN CABINET BOTTOM)
WOOD SHIMS
(
RECESSED-BOTTOM
CABINETS
ONLY)
CABINET FRONT
3/4"
1⅜"
1½"
9¾"
4
7
/16"
CABINET
BOTTOM
REAR HOOD MOUNTING SCREWS
(
2
)
12⅞" (30" HOOD)
15⅞" (36"
HOOD)
12⅞" (30"
HOOD)
15⅞" (36"
HOOD)
3¼" X 14"
VERTICAL DUCTING
CABINET
BOTTOM
CABINET FRONT
HORIZONTAL DUCT
ACCESS HOLE
3⅞"
WOOD SHIMS
(
RECESSED-BOTTOM
CABINETS
ONLY)
13/16"
3/16"
7¼"
7¼"
9¾"
REAR HOOD
MOUNTING
SCREWS (2)
ELECTRICAL
ACCESS HOLE
(
IN WALL)
CENTER
LINE
12⅞" (30" HOOD)
15⅞" (36"
HOOD)
12⅞" (30"
HOOD)
15⅞" (36"
HOOD)
3¼" X 14"
HORIZONTAL DUCTING










