Specifications

SPECIFICATION SHEET
REFERENCE QTY. REMARKS Project
Location
Architect
Engineer
Contractor
Submitted By Date
90M 99044444E
E64 SERIES
RANGE HOOD
Broan-NuTone LLC Hartford, Wisconsin www.broan.com 800-558-1711
Broan-NuTone Canada Mississauga, Ontario www.broan.ca 877-896-1119
For domestic
cooking only.
HVI-2100 CERTIFIED RATINGS comply with new
testing technologies and procedures prescribed
by the Home Ventilating Institute, for off-the-shelf
products, as they are available to consumers. Product
performance is rated at 0.1 in. static pressure, based
on tests conducted in a state-of-the-art test laboratory.
Sones are a measure of humanly-perceived loudness,
based on laboratory measurements.
Styling is fresh and modern, yet designed to easily
complement popular pro-style, high performance cooking
products.
A complete installation requires several optional components.
Refer to page 2 when planning your installation.
FEATURES
HOOD:
•
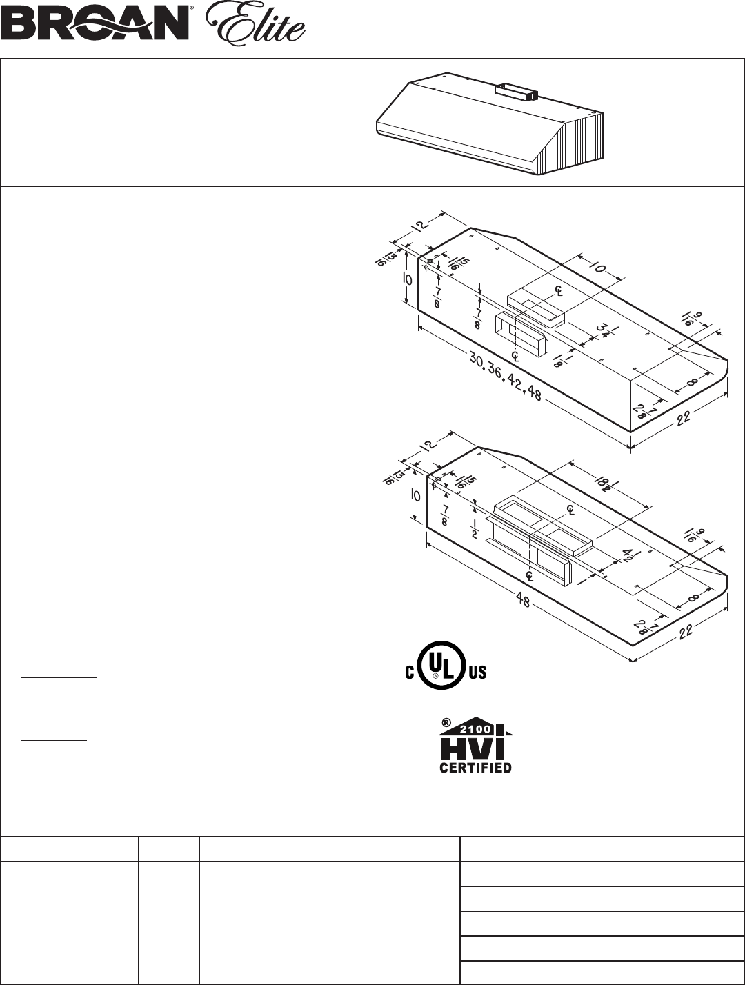
Widths available - 30” to 48” in 6” increments
•
Stainless steel, 22 gauge, type 430, #4 brush
•
Stainless steel baffle filters with handles - easily accessible,
dishwasher safe
•
2-level cooktop lighting (30” & 36” wide hoods = 2 lamps,
42” & 48” wide hoods = 3 lamps. Uses 50W, GU10 halogen
lamps. Bulbs not included.)
•
Solid-state, variable speed blower control with speed
memory
•
Exclusive, Heat Sentry™ turns blower ON to HIGH speed
when excess heat is detected
•
3¼” x 10” ducting - single blower (600 cfm)
•
4½” x 18½” ducting - dual blower (1200 cfm)
•
For indoor use only.
NON-DUCTED RECIRCULATING KIT:
ANKE60 Series (Optional)
•
Stainless steel, 22 gauge, type 430, #4 brush
•
Available for hood widths up to 48”
•
Charcoal filters included
Replacement charcoal filters:
- Service Part # SV08343 - round filter retail pack
BACKSPLASH:
RMP Series (Optional)
•
Widths - 30” to 48” in 6” increments
•
Stainless steel, 22 gauge, type 430, #4 brush - protects back
wall and wipes clean easily
•
Two, removable, dual position condiment storage shelves
SPECIFICATION:
Single Blower
•
120 VAC, 60 Hz, 5.5 Amps
•
600 cfm, sound level no greater than 13.5 sones
(high speed, vert. & horiz. discharge)
•
150 cfm, 1.5 sones (working speed, vert. & horiz. discharge)
Dual Blower
•
120 VAC, 60 Hz, 9.0 Amps
•
1200 cfm, sound level no greater than 14.5 sones
(high speed, vert. & horiz. discharge)
•
350 cfm, 2.0 sones (working speed, vert. & horiz. discharge)
Models
E6430SS
E6436SS
E6442SS
E6448SS
Model
E6448TSS


