Installation Instructions

18 Allure Rev. F juni 2013
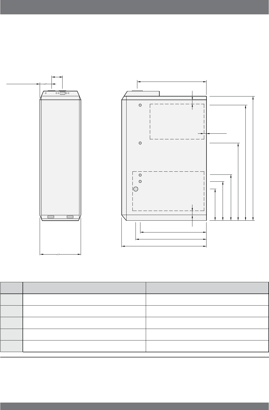
Aansluitpunten Allure-serie
Hoofdstuk 5 Installeren
5.4.1 Overzicht aansluitmogelijkheden
UPFLOW HR-TOESTEL DOWNFLOW HR-TOESTEL
A Doorvoer luchttemperatuurvoeler Doorvoer netvoedingskabel 230 V.
B Doorvoer netvoedingskabel 230 V. Doorvoer gasleiding
C Doorvoer ruimtethermostaat kabel Doorvoer luchttemperatuurvoeler
D Doorvoer condenswaterafvoer Doorvoer condenswaterafvoer
E Doorvoer gasleiding Doorvoer ruimtethermostaat
5.4.2 Montage
'HPRQWDJHYDQZDUPHOXFKWYHUGHHONDVW¿OWHUNDVWSRGLXPHQ
luchtkanalen staat beschreven in de Brink montagehandlei-
ding.
B-16/3000 600 mm
B-25/3400 600 mm
B-40/3400 600 mm
B-16/2100 500 mm
B-25/2100 500 mm
B-16/1350 400 mm
B-16/3000 175 mm
B-25/3400 175 mm
B-40/3400 175 mm
B-16/2100 125 mm
B-25/2100 125 mm
B-16/1350 110 mm
597
650
740
120
630
max. 25
4025
290
360
415
730
1100
1200
'RZQÀRZ
495 x 352
8SÀRZ
654 x 352










