Indoor Fireplace User Manual
Manuals
Brands
Breckwell Manuals
Indoor Fireplace
P24FSL
1
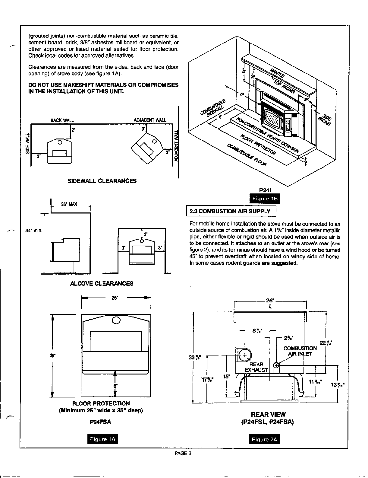
2
3
4
5
6
7
8
9
10
1
2
3
4
5
...
...
13