Specification Sheet

4722-1015
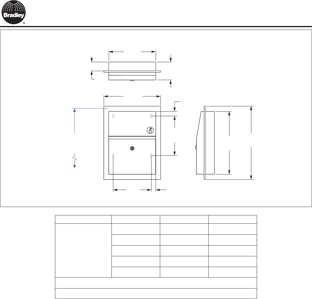
Napkin Disposal
© 2014 Bradley
P.O. Box 309, Menomonee Falls, WI 53052-0309
800 BRADLEY (800 272 3539) +1 262 251 6000
bradleycorp.com
Page 2 of 2 5/2/2012
This information is subject to change without notice.
Bradley_WasteReceptacle_4722-1015
15¹⁄₈"
(384mm)
17¹⁄₈"
(435mm)
4"
(102mm)
10¾"
(273mm)
2⁹⁄₁₆"
(65mm)
1¹⁄₁₆"
(27mm)
8⁹⁄₁₆"
(217mm)
9⁹⁄₁₆"
(243mm)
12¾"
(324mm)
1¹⁄₁₆"
(27mm)
Dim. "A" Key Surface: For Dim. "A" Top of Unit Bottom of Unit
Top of door (6" door
opening) to finished
floor
48" (1219mm) 48" (1219mm)
32⁵⁄₈" (829mm)
45" (1143mm) 45" (1143mm)
29⁵⁄₈" (752mm)
42" (1067mm) 42" (1067mm)
26⁵⁄₈" (676mm)
36" (914mm) 36" (914mm)
20⁵⁄₈" (524mm)
33" (838mm) 33" (838mm)
17⁵⁄₈" (448mm)
Rough wall opening:
Semi-Recessed:
11" (279mm) Wide x 15³⁄₈" (391mm) High x 2⁹⁄₁₆" (65mm) Deep
Dimensions
Dim. "A"
to finished
floor