User guide

12
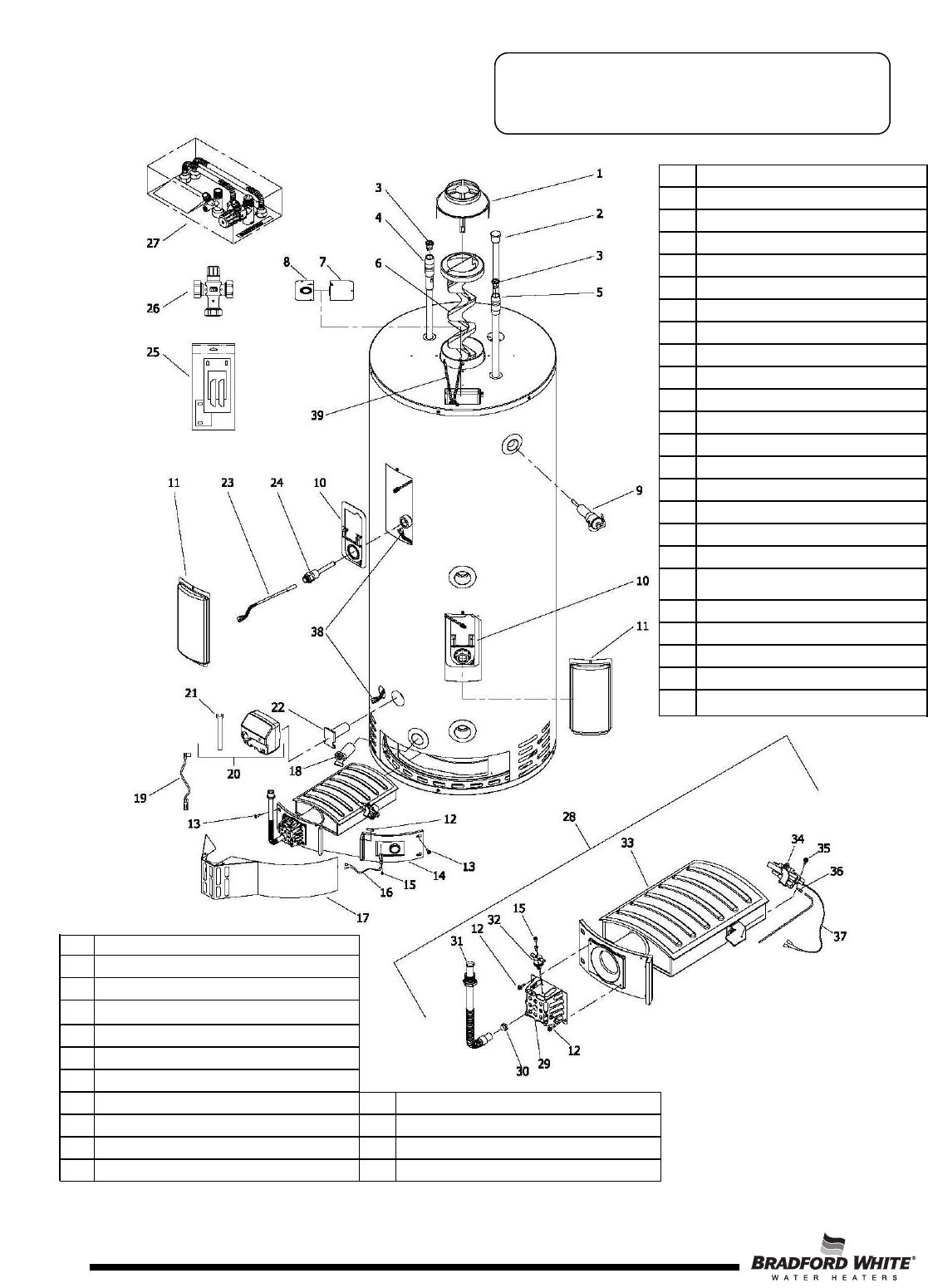
EcoStor2™ Solar
1
Draft Diverter
2
Hex Head Anode (Aluminum)
3 Heat Trap Insert
4 Hot Water Outlet Anode (Aluminum)
5 Cold Water Inlet Polysulfone (NC Code)
6 Flue Baffle
7
Junction Box Cover
8 Conduit Cover/Ground
9 T&P Relief Valve
10 Thermostat Bracket Assembly
11 Access Cover
12 Screw-#8-18 X 3/4 HWH
13 Screw-#10-12 X 3/4 HWH
14 Right Side Inner Door Complete
1
5 Screw-#6-20 X 3/8 PHCR
16 RTD Sensor
17 Outer Door
18 Brass Drain Valve
19
Wire Harness (Gas Control to Resettable
Thermal Switch)
20 Gas Control (w/ Service Tool)
21 Gas Control Service Tool
22 Gas Control Bracket
23 Thermostat Sensor
24 Thermostat Sensor Well
25 Inner Door Gasket Kit
26 ASSE Approved Mixing Valve (Optional)
27 Universal Integrated Mixing Device Kit (IMD)
28 Burner Assembly
29 Manifold Mount
30 Orifice
31 Flexible Gas Feedline
32 Resettable Thermal Switch
33 Burner
34 Pilot Assembly Kit
35 Screw-#8-18 X 1/2 TEK
36 Pilot Orifice
37 Thermopile Kit
38 Thermostat Sensor Wire Harness
39 Solar Sensor Wire Harness
Solar Thermal Parts List
(Ultra Low NOx)
12